Wickham Way, Park Langley, Beckenham, BR3

GBP 1250000 For Sale

Property Details

Bedrooms

4

Bathrooms

3

Property Type

Detached

Description

Property Details: • Type: Detached • Tenure: N/A • Floor Area: N/A

Key Features: • Detached family house with spacious rooms • Well located for popular Langley Park Schools • Beautiful first floor with THREE BATHROOMS • Main bedroom with en suite and dressing room • Previous permission for large rear extension • Replacement boiler and hot tank in 2022 • Mainly updated in readiness for extension • 41m/135ft garden with south westerly aspect

Location: • Nearest Station: N/A • Distance to Station: N/A

Agent Information: • Address: 104 Wickham Road, Beckenham, BR3 6QH

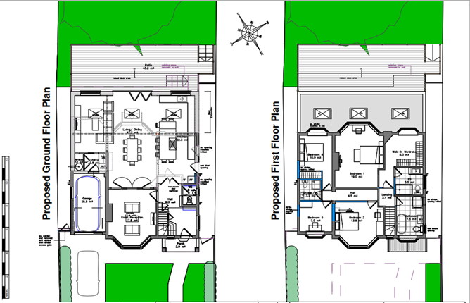
Full Description: Great detached family home in highly desirable location for Langley Park Schools (Primary and Secondary) and Unicorn Primary. Reconfigured and updated first floor provides FOUR good size BEDROOMS and THREE BATHROOMS, including impressive Principal Suite with generous bedroom, excellent en suite and dressing room (could be used as Bedroom 5). Two elegant open plan reception rooms provide wonderful reception space measuring 10.4m max x 4.1m max (34ft x 13'5). PLANNING PERMISSION granted 26.08.20 (now lapsed) for full width rear extension incorporating rear portion of double length garage and creating outstanding open plan living area with kitchen. The work already completed makes this a comfortable prospect to move in and enjoy but the kitchen and rear terrace have been left needing work, as these will be transformed by the proposed extension. Large rear garden with south westerly aspect, gate to St Dunstans Lane and landscaped area to far end with Chalet/Home Office and Storage Shed.Wickham Way is one of the finest residential roads in Beckenham and this property is situated almost opposite the turning into Brabourne Rise and beside St Dunstan's Lane. The popular Langley Park (Secondary and Primary) Schools are in the vicinity as well as Unicorn Primary. Local shops are found on Wickham Road by the Park Langley roundabout, only half a mile away, and just beyond the shops is an entrance to Kelsey Park. Beckenham High Street is about a mile away offering a range of shops, restaurants and other amenities. From Beckenham Junction there are trains to Victoria and The City as well as trams to Croydon and Wimbledon. West Wickham Station offers train services to London Bridge and Charing Cross.Entrance Hall5.03m x 3.24m max (16'6 x 10'8) includes cupboard beneath stairs, radiator, double glazed windows to front and sideCloakroom1.78m x 1.19m (5'10 x 3'11) white low level wc, wash basin, heated towel rail, original wood strip flooring, double glazed window to sideKitchen4.05m max x 3.23m (13'3 x 10'7) base cupboards and drawers beneath work surfaces plus space for washing machine and dishwasher, inset single drainer stainless steel sink with mixer tap, New World cooker with double oven and gas hob, wall tiling, wall units, radiator, double glazed window to rear plus further windows and door to sideSitting Room4.8m max x 4.09m (15'9 x 13'5) wood strip flooring, radiator set into wide front bay with double glazed windows and plantation shuttersDining Room5.38m max x 4.09m max (17'8 x 13'5) marble fireplace, radiator, wood strip flooring, wide rear bay with double glazed windows and doors gardenLanding6.23m x 1.78m max to far end (20'5 x 5'10) radiator, double glazed window to front above stairsPrincipal Suite7.44m max x 5.37m max (24'5 x 17'7) providing three areas as follows:~ Bedroom 15.37m max x 4.05m max (17'7 x 13'3) includes pair of full height built-in wardrobes, radiator set into wide bay with double glazed windows and plantation shutters~ Dressing Room3.26m max x 2.66m max (10'8 x 8'9) includes ample fitted wardrobes, radiator, rear bay with double glazed windows, plantation shutters and deep sill~ En Suite Shower Room2.41m x 2.28m (7'11 x 7'6) tiled shower with glazed screens, low level wc, wash basin with mixer tap having deep drawers beneath, wall tiling, heated towel rail, tiled floor, double glazed window to sideAgents NotePrincipal Suite is now a wonderful feature of the property but, required Dressing Room could become Bedroom 5Bedroom 24.13m x 3.82m max (13'7 x 12'6) radiator set into wide front bay with double glazed windows and plantation shuttersBedroom 33.53m x 2.73m (11'7 x 8'11) radiator beneath double glazed bay window to rear with plantation shutters and deep sillBedroom 42.72m x 2.64m (8'11 x 8'8) radiator beneath double glazed bay window to front with plantation shutters and deep sillShower Room1.77m x 1.74m (5'10 x 5'9) tiled shower cubicle having hinged door, low level wc, wash basin with mixer tap having drawer beneath, heated towel rail, tiled floorFamily Bathroom3.34m x 2.26m (10'11 x 7'5) large white bath having mixer tap and shower attachment, tiled shower with glazed screen, circular wash basin with mixer tap having drawers beneath, white low level wc, wall tiling, heated towel rail, tiled floor, double glazed window to side and front bay with double glazed windows, plantation shutters and deep sillFront Gardenextensive gravelled driveway providing ample parkingGarage9.6m x 2.76m (31'6 x 9'1) front portion provides parking for car with electrically operated roller shutter door, mezzanine storage, window to side, rear portion has modern Worcester gas boiler and pressurised hot water cylinder (installed 08/04/2022), light and power, windows to side and rear plus door to terraceRear Garden41m x 13m (135 ft x 43ft enjoys the best of the afternoon sunshine with south westerly aspect and rear extension will incorporate exiting terrace. Side access with gate from driveway, outside tap, steps to lawn and borders, brick walls to side and rear boundaries with gate St Dunstans Lane, landscaped slate finish terrace having inset lights and Chalet/Home Office with shed to one side, mature trees and recessed trampolineChalet/Home Office2.94m x 2.94m (9'8 x 9'8) wood finish flooring, power and broadband, wood finish flooring, full height double glazed windows and double doors STORAGE SHED 3.02m x 1.25m (9'11 x 4'1) with light and fuse boardCouncil TaxLondon Borough of Bromley - Band GBrochuresBrochure 1

Location

Address

Wickham Way, Park Langley, Beckenham, BR3

City

London

Features and Finishes

Detached family house with spacious rooms, Well located for popular Langley Park Schools, Beautiful first floor with THREE BATHROOMS, Main bedroom with en suite and dressing room, Previous permission for large rear extension, Replacement boiler and hot tank in 2022, Mainly updated in readiness for extension, 41m/135ft garden with south westerly aspect

Legal Notice

Our comprehensive database is populated by our meticulous research and analysis of public data. MirrorRealEstate strives for accuracy and we make every effort to verify the information. However, MirrorRealEstate is not liable for the use or misuse of the site's information. The information displayed on MirrorRealEstate.com is for reference only.

Real Estate Broker
Proctors, Park Langley
Brokerage
Proctors, Park Langley
Top Tags
Likes

0

Views

80

This website uses cookies to ensure you get the best experience. Learn more