Windmill Hill, Herstmonceux, BN27
Property Details
Land
Description
Property Details: • Type: Land • Tenure: N/A • Floor Area: N/A
Key Features:
Location: • Nearest Station: Normans Bay Station • Distance to Station: 4.5 miles
Agent Information: • Address: 33 High Street, Battle, TN33 0EA
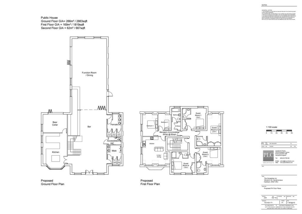
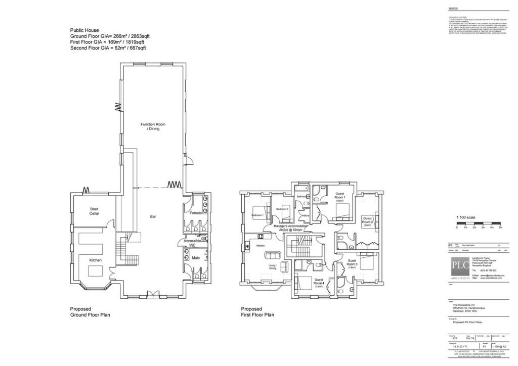
Full Description: Nestled in the heart of Windmill Hill, a charming village in Wealden, East Sussex, the Horseshoe Inn presents an unparalleled opportunity for investors and entrepreneurs alike. This leisure/retail property, spanning an impressive 5,349 sq ft, is primed for transformation into a bustling public house, complete with manager's accommodation and additional letting rooms.Key Features:Strategic Location: Situated just 9 miles south of Eastbourne and 48 miles north of London, the property offers easy access to major cities while retaining its village charm.Comprehensive Planning Permission: The site comes with approved plans for a new-build public house, including manager's accommodation and letting rooms spread across three floors.Versatile Space: The ground floor is designed for the public house (2,863 sq ft), the first floor for manager's accommodation and letting rooms (1,819 sq ft), and the second floor exclusively for additional letting rooms (667 sq ft).Ample Parking: With 24 dedicated parking spaces, the property ensures convenience for both staff and patrons.
Location
Address
Windmill Hill, Herstmonceux, BN27
City
Wealden
Features and Finishes
None
Legal Notice
Our comprehensive database is populated by our meticulous research and analysis of public data. MirrorRealEstate strives for accuracy and we make every effort to verify the information. However, MirrorRealEstate is not liable for the use or misuse of the site's information. The information displayed on MirrorRealEstate.com is for reference only.