Windrush, 58 Pwllmelin Road, Cardiff, South Glamorgan, Wales, CF5
Property Details
Residential Development
Description
Property Details: • Type: Residential Development • Tenure: N/A • Floor Area: N/A
Key Features:
Location: • Nearest Station: Fairwater Station • Distance to Station: 0.1 miles
Agent Information: • Address: 33 Wigmore Street , London, W1U 1BZ
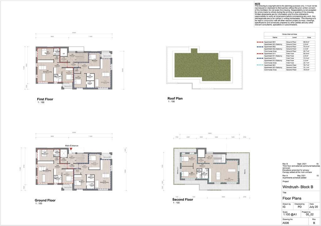
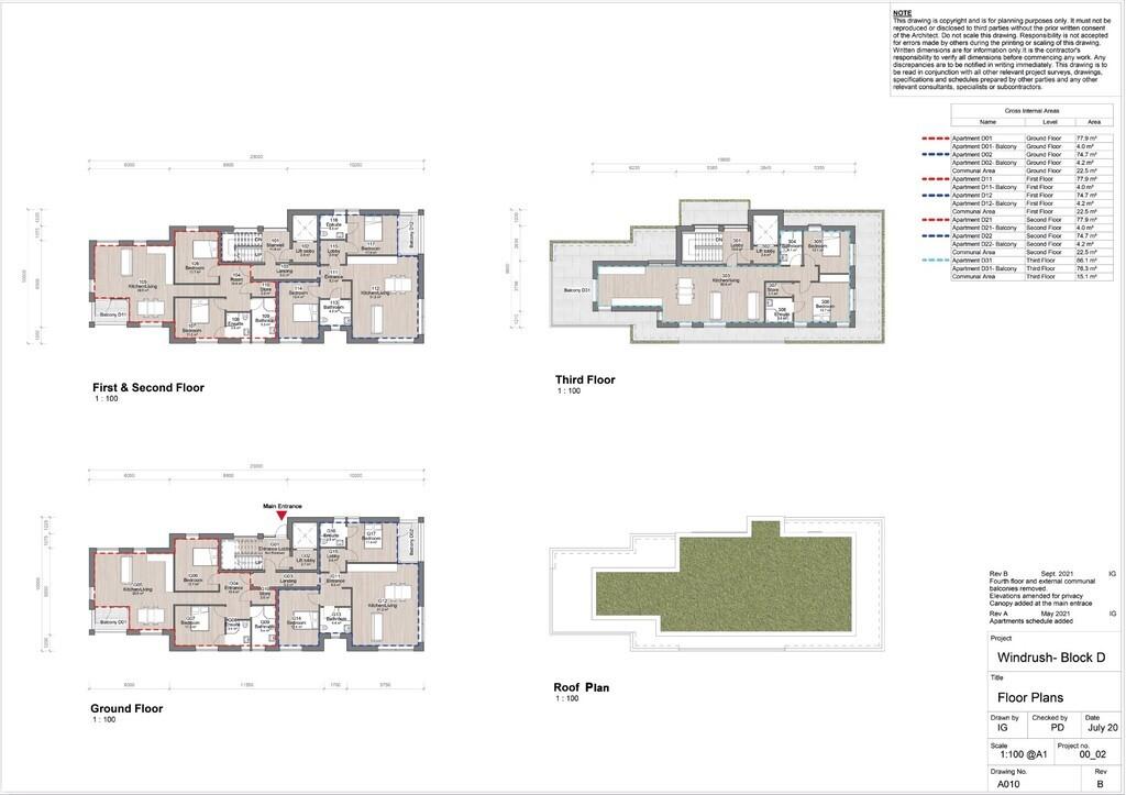
Full Description: Key FeaturesLot 149 for sale by auction on 20/02/2025To view the property or see a virtual tour please refer to the full sales particulars on the auctioneers websiteCurrently occupied by a Derelict Four Bedroom Dormer Bungalow Site Area approximately 0.402 Hectares (0.994 Acres)Planning Consent Granted for Demolition of the Existing and Replacement with 23 Self Contained Residential Apartments, contained within Four Separate Blocks Subject to Completion of a Section 106 AgreementComprising 21 x Two-Bedroom Flats and 2 x One-Bedroom FlatsAdditionally the site benefits from lapsed Outline Planning Consent for Proposed Demolition of Existing Dormer Bungalow and Construction of Five New Detached HousesAn application has been made for Variation of Condition 1C of 18/00642/MNR to allow a further three years for Reserved Matters and Condition 1D of 18/00642/MNR to allow a further five years from commencement or two years from the date of the last reserved matters to be approved, whichever is the latest. Decision PendingThe site is situated on the north side of Pwllmelin Road, 2.9 miles to the north west of Cardiff City CentreKey LocationsThe site is situated on the north side of Pwllmelin Road, 2.9 miles to the north west of Cardiff City CentreCardiff Road (A4119) is readily accessible to the east in turn providing access to the A48. Additionally, the M4 is within reach to the north The entrance to Fairwater Station (National Rail) is situated opposite the site A range of shops, restaurants and amenities is readily accessible along the High Street 0.7 miles to the east with further extensive facilities available in Cardiff City Centre 2.9 miles to the south eastCardiff Metropolitan University is 1.1 miles to the east The open space of Fairwater Park is within reach 0.3 miles to the westViewingsTo view please call the Joint Auctioneer BrochuresBrochure
Location
Address
Windrush, 58 Pwllmelin Road, Cardiff, South Glamorgan, Wales, CF5
City
None
Features and Finishes
None
Legal Notice
Our comprehensive database is populated by our meticulous research and analysis of public data. MirrorRealEstate strives for accuracy and we make every effort to verify the information. However, MirrorRealEstate is not liable for the use or misuse of the site's information. The information displayed on MirrorRealEstate.com is for reference only.