Wood Road, Treforest, Pontypridd

GBP 310 For Rent

Property Details

Property Type

House Share

Description

Property Details: • Type: House Share • Tenure: N/A • Floor Area: N/A

Key Features:

Location: • Nearest Station: N/A • Distance to Station: N/A

Agent Information: • Address: 1 Church Street, Pontypridd, CF37 2TH

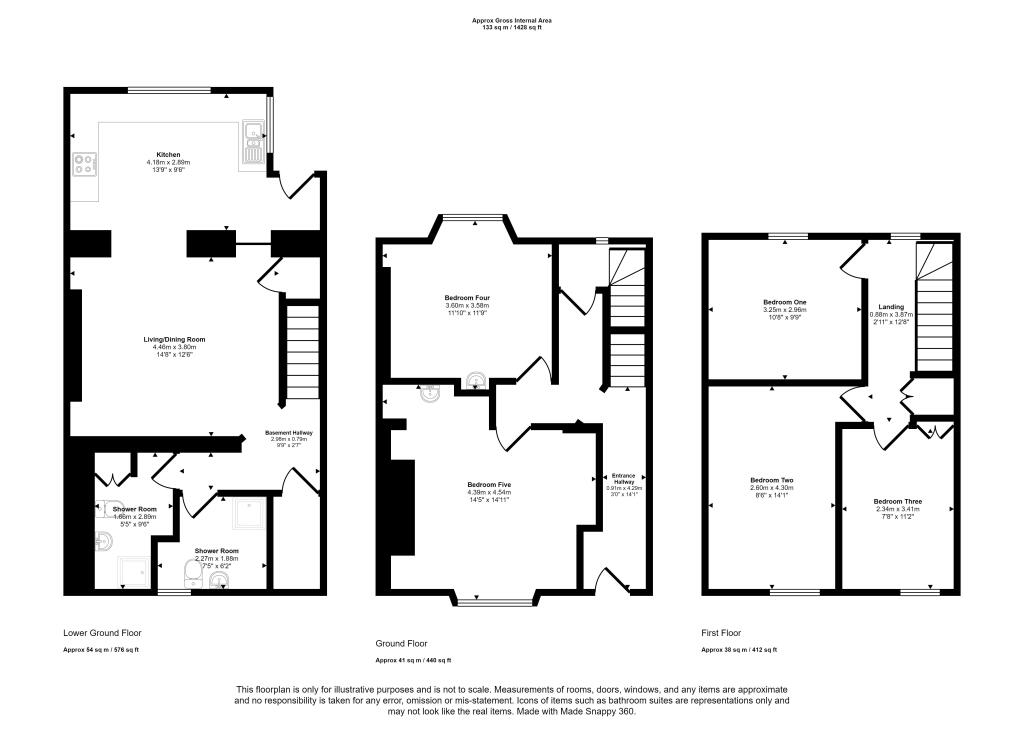
Full Description: ** SINGLE BEDROOM AVAILABLE NOW **STUDENT HOUSE SHARE ** FURNISHED ** FANTASTIC LOCATION ** My Student Living are delighted to offer this single bedroom in a student house share to rent. Close to the local shops, parks and USW Treforest Campus, this location offers great transport links and amenities. The property itself consists of three stories with a basement lounge, a large and modern kitchen area, two bathrooms (one with a shower cubicle and one with a bath), 2 spacious ground floor bedrooms and 3 first floor bedrooms. The house also benefits from a lovely rear garden and on street parking.Key Details Monthly Rent: £310.00Deposit: £410.00Holding Deposit: £71.00EPC Rating: CCouncil Tax Band: CBuilding Materials: BrickSewerage Supply: Mains sewerageBroadband Coverage: Virgin Media, Openreach 6 Mbps to 1000 MbpsMobile Coverage: Limited EE Voice and Data, limited 3 Data, limited O2 DataUtility Supplies: Electrical supply and gas central heatingWater Supply: No Water meterParking Status: On street no permitRestrictions - No known restrictions & rights Flood Risk - Very low risk of floodingPotential Development: No known future development to property or surroundingsAccessibility: No known accessibility featuresCoal Fields/Mining Area: NoPlease note that we cannot guarantee that if there is a telephone line at the property that it is connected. If not, It is the responsibility of the Contract Holder to pay for any line reconnection fees.BrochuresProperty Brochure

Location

Address

Wood Road, Treforest, Pontypridd

City

Treforest

Legal Notice

Our comprehensive database is populated by our meticulous research and analysis of public data. MirrorRealEstate strives for accuracy and we make every effort to verify the information. However, MirrorRealEstate is not liable for the use or misuse of the site's information. The information displayed on MirrorRealEstate.com is for reference only.

Real Estate Broker
My Student Living, Pontypridd
Brokerage
My Student Living, Pontypridd
Top Tags
Student House Share Furnished Property Fantastic Location
Likes

0

Views

14

This website uses cookies to ensure you get the best experience. Learn more