Woodfield Lane, Hatfield, AL9

GBP 1200000 For Sale

Property Details

Bedrooms

3

Property Type

Detached

Description

Property Details: • Type: Detached • Tenure: Freehold • Floor Area: N/A

Key Features:

Location: • Nearest Station: N/A • Distance to Station: N/A

Agent Information: • Address: 10 Church Hill Road, Barnet, EN4 8TB

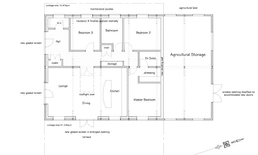
Full Description: Nestled within 4.4 acres (STV) of Essendon countryside this secluded plot via a private road. Offers an exclusive once in a lifetime opportunity for families or developers to create a bespoke conversion, to build a 3 bedroom 147.15 sq. mtr detached home, planning permission REF 6/2024/1570/PN10 Nestled within 4.4 acres (STV) of Essendon countryside this secluded plot accessed by a private road. Offers an exclusive once-in-a-lifetime opportunity for families or developers to create a bespoke conversion, a 3 bedroom 147.15 sq mtr’s detached home, this plot comes with full planning permission Welwyn and Hatfield planning Ref Number 6/2024/1570/PN10Paragraph taken from Planning statement by PNA:(c) the floor space of any dwellinghouse developed under Class Q having a use falling within Class C3 (dwellinghouses) of Schedule 1 to the Use Classes Order exceeds 150 square metres The existing agricultural barn has a footprint of 208sq m and our submitted proposals propose converting 147.15sq m of this to residential use with the remainder remaining in storage use. Our proposals do not therefore exceed the 150sqm maximum floor space above. To: Mr Paul Symonds Application No: 6/2024/1570/PN10 Application Date: 19 August 2024 Date of Approval: 14 October 2024 DETERMINATION BY THE LOCAL PLANNING AUTHORITY IN RESPECT TO PRIOR APPROVAL UNDER SCHEDULE 2, PART 3, CLASS Q OF THE TOWN AND COUNTRY PLANNING (GENERAL PERMITTED DEVELOPMENT) (ENGLAND) ORDER 2015 Welwyn Hatfield Borough Council hereby confirm that their PRIOR APPROVAL IS REQUIRED AND GIVEN for the proposed development which meets the above requirements of the Town and Country Planning (General Permitted Development) (England) Order 2015 at the address shown, as described by the description, and in accordance with the information that the developer provided to the Local Planning Authority. Development: Prior approval for the change of use and conversion of existing agricultural storage building to one 3-bedroom dwelling At location: Chestnut Farm Woodfield Lane Hatfield AL9 6JJ

Location

Address

Woodfield Lane, Hatfield, AL9

City

Hatfield

Legal Notice

Our comprehensive database is populated by our meticulous research and analysis of public data. MirrorRealEstate strives for accuracy and we make every effort to verify the information. However, MirrorRealEstate is not liable for the use or misuse of the site's information. The information displayed on MirrorRealEstate.com is for reference only.

Real Estate Broker
Chas R Lowe Estates, East Barnet
Brokerage
Chas R Lowe Estates, East Barnet
Top Tags
Private road access
Likes

0

Views

38

This website uses cookies to ensure you get the best experience. Learn more