Woodside, Barnard Castle, County Durham, DL12

GBP 625000 For Sale

Property Details

Bedrooms

5

Bathrooms

3

Property Type

Detached

Description

Property Details: • Type: Detached • Tenure: N/A • Floor Area: N/A

Key Features: • Specious Detached House • Desirable Location • Extended Accommodation • Five Bedrooms • Planning Permission for Double Height Extension • Potential Development Opportunity • Single Garage • Large Driveway • South Facing Large Rear Garden

Location: • Nearest Station: N/A • Distance to Station: N/A

Agent Information: • Address: 13 Galgate, Barnard Castle, DL12 8EQ

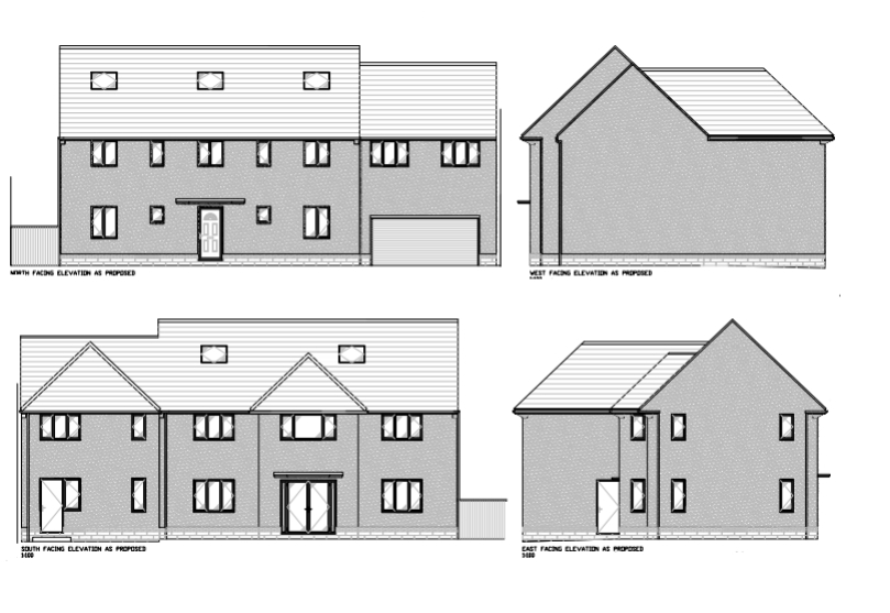
Full Description: We are pleased to offer to the market this extremely spacious detached family home located in the highly desirable area of Woodside within the historic market town of Barnard Castle. The property has been extended and much improved by the current owners to provide a fabulous home offering the purchaser with the potential to extend its already spacious footprint with the creation of double height extension. There is also potential for the provision of a detached bungalow within the confines of the garden, subject to the necessary planning consents being obtained. The accommodation briefly comprises: Entrance Hallway, Large Living Room, Dining Kitchen, Rear Entrance, Ground Floor Cloakroom. To the First Floor there is a Family Bathroom, Two Double Bedrooms and Large Bedroom Suite with Dressing Room and Shower Room. The Second Floor has a Landing/Dressing Room, Two Double Bedrooms and Large En Suite Bathroom. Externally there is a Driveway providing parking for up to 8 vehicles, Single Garage, South Facing Garden, Raised Decking, Lawn and Bar. Gas Fired Central Heating and Double Glazing Throughout.Entrance HallWelcoming reception hallway with storage cupboard, radiator, doors accessing the ground floor accommodation. Stairs rising to the first floor with windows looking out over the front of the property.CloakroomLow level wc, hand wash basin with glass tiled splahsbacks, tiled flooring, obscured glazed window and large storage cupboard also housing the water tank.Dining KitchenModern shaker style grey wall and floor units, tiled splash backs and worktops incorporating sink unit. Integrated appliances including dishwasher, fridge, freezer, side by side double oven, microwave, wine fridge, barista style coffee machine, and induction hob with cabinetted extractor fan above. Windows overlooking the rear garden and the front of the property, spotlights, vertical radiator and tiled flooring. There is space within the kitchen for a large family sized dining table with built-in seating. Stable door to rear entrance vestibule.Rear EntrancePlumbing for washing machine and door leading out to the side of the property.Living RoomLarge reception room with media wall incorporating electric fire and wall mounted tv, built-in shelves with storage units below to alcove, French doors leading out to the composite decked patio area. Further windows to dual aspect and radiators. The living room is currently split into two distinctive living areas but could be used as living/dining room if preferred.OfficeLocated to the front of the property with windows to dual aspect, wall mounted tv point, central ceiling light and radiator.LandingWindow overlooking the front of the property, staircase rising to the second floor and doors accessing the first floor accommodation. The landing offers plenty of storage solutions with large understairs storage cupboard, two further storage cupboards, one of which houses the gas central heating boiler. Radiator and spotlights.Master Bedroom Bedroom area with spotlights, radiator and windows looking out over the roof tops of Barnard Castle and countryside views beyond. Through access to a dressing room with central ceiling light, windows to dual aspect and radiator. The dressing room was previously a bedroom and could easily be reinstated, should further bedroom accommodation be required. En suite shower room with oversized shower cubicle, cabinetted hand wash basin and low level wc. Obscured glazed windows to dual aspect, laminate flooring, tiled splash backs and vertical radiator.BathroomP-shaped panelled bath with shower over and screen. Wall hung vanity unit with hand wash basin, cabinetted back to wall low wc with built-in storage, vertical radiator and obscured glazed window.Bedroom 2Double bedroom with windows to dual aspect built-in storage cupboard, central ceiling light and radiator.Bedroom 3Double bedroom with windows to dual aspect enjoys views to the rear, built-in cupboard and vertical radiator.SECOND FLOORLandingLarge landing area which could easily lend itself to being a study, playroom, tv room or dressing room. Radiator, Velux window, spot lights and doors providing access to the bedroom accommodation.Bedroom 4Double bedroom with two Velux windows, wall mounted TV point and spotlights. Door leading through to bathroom.En SuiteVanity unit with inset hand wash basin with mirrored cabinet above, freestanding bath, shower cubicle, cabinetted low level wc, heated towel rail, Velux window and inset lighting.Bedroom 5Double bedroom with Velux window, spotlights and radiator.EXTERNALLYTo the front of the property there is Tarmac driveway providing off road parking for upto 8 vehicles, out door lighting and power points. Separate access driveway leads to a single Garage. A south facing rear garden which is predominately laid to lawn with large composite decked area, covered bar/entertainment area with plumbing and power for hot tub.COUNCIL TAXBand ETENUREFreeholdPLANNINGPlanning has been granted for a double height extension to the side elevation incorporating a double garage, utility, WC and bathroom. Two bedrooms and en suite to the first floor. These plans can be viewed at the planning portal (planning refernece DM/15/02361/FPA).There is potential for the provision of a bungalow within the garden, subject to necessary consents being obtained.NOTEWithin in the kitchen/dining room pipework for underfloor heating has been installed and just requires to be connected. The pipework/electrics have been connected in readiness for the construction of the extension.SERVICESMains Electricty, Mains Gas, Mains Water and Mains SewerageVIEWINGStrictly by appointment through the selling agents Addisons Chartered Surveyors T: opt 1.PRICE£625,000BROCHUREDetails and photographs taken October 2024.BrochuresBrochure

Location

Address

Woodside, Barnard Castle, County Durham, DL12

City

Barnard Castle

Features and Finishes

Specious Detached House, Desirable Location, Extended Accommodation, Five Bedrooms, Planning Permission for Double Height Extension, Potential Development Opportunity, Single Garage, Large Driveway, South Facing Large Rear Garden

Legal Notice

Our comprehensive database is populated by our meticulous research and analysis of public data. MirrorRealEstate strives for accuracy and we make every effort to verify the information. However, MirrorRealEstate is not liable for the use or misuse of the site's information. The information displayed on MirrorRealEstate.com is for reference only.

Real Estate Broker
Addisons Chartered Surveyors, Barnard Castle
Brokerage
Addisons Chartered Surveyors, Barnard Castle
Top Tags
Five Bedrooms Large Driveway
Likes

0

Views

21

This website uses cookies to ensure you get the best experience. Learn more