Yasuta Ward 7, Towa Town, Hanamaki City, Iwate Prefecture

JPY 500000 For Sale

Property Details

Property Type

House

Description

Construction Year: 1922

Prefecture: iwate

Views: 97

Likes: 8

First Seen: Thu, 16 Jan 2025 01:00:30 GMT

Building Area: 181.39 m²

Land Area: 1364.59 m²

Property Type: House

Station: Tsuchizawa

Station Distance: 1744m

Parking: Not Available

It is over 100 years old and needs repairs, but the thick beams are attractive. It is close to the Towa Interchange and shopping street, and has a good view from a slightly elevated location. Property registered with Hanamaki City Vacant House Bank.

Vacant house bank registered properties

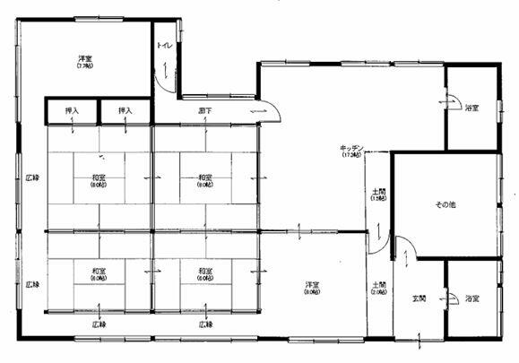
This 100-year-old wooden house requires repairs, but its thick beams add charm. Conveniently located near Towa Interchange and the shopping district, it offers pleasant views from its slightly elevated position. The house has six Japanese-style rooms (8, 8, 6, and 6 tatami mats each) and two Western-style rooms (7.7 and 8 tatami mats each). Currently unoccupied, it is registered with the Hanamaki City Vacant House Bank. The nearest station is Yasuta Station on the JR Kamaishi Line, a 29-minute walk away.

Nestled in the heart of Towa Town, this property offers a tranquil retreat surrounded by the natural beauty of Iwate Prefecture. Hanamaki City boasts a rich history and cultural heritage, with numerous temples, shrines, and museums to explore. The area is renowned for its stunning scenery, including the Kitakami River and the majestic Mount Hayachine. With its convenient location and access to local amenities, this property provides an ideal base for experiencing the vibrant culture and breathtaking landscapes of Japan.

Location

Address

Yasuta Ward 7, Towa Town, Hanamaki City, Iwate Prefecture

City

iwate

Legal Notice

Our comprehensive database is populated by our meticulous research and analysis of public data. MirrorRealEstate strives for accuracy and we make every effort to verify the information. However, MirrorRealEstate is not liable for the use or misuse of the site's information. The information displayed on MirrorRealEstate.com is for reference only.

Real Estate Broker
Akiya Mart
Brokerage
Akiya Mart
Top Tags
Likes

0

Views

168

This website uses cookies to ensure you get the best experience. Learn more