"Zinbar" 5 Stirling Street, Wingen NSW 2337
Property Details
5
1
House
Description
Property Details: • Type: House
• Bedrooms: 5 • Bathrooms: 1
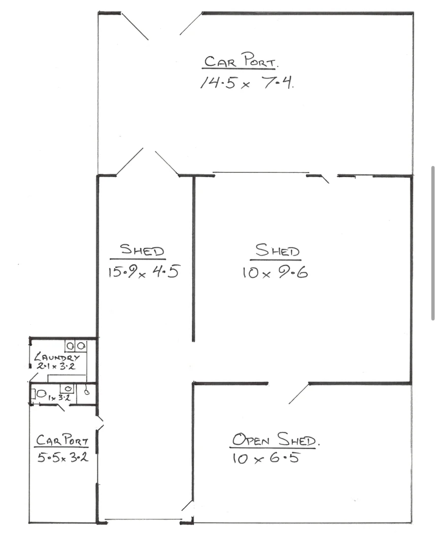
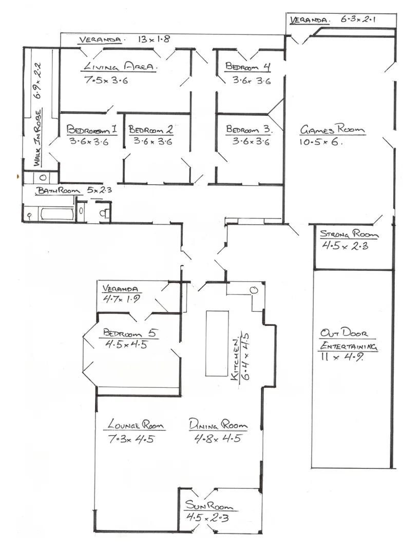
Description: ZINBAR - A Landmark Upper Hunter Valley Residence with Exceptional Shedding and Endless Potential A rare opportunity to secure one of the Upper Hunter Valley's most recognisable landmark properties ZINBAR" Just 10 minutes from Scone. This commanding 1872 residence combines timeless country charm with extensive infrastructure, offering unmatched versatility for lifestyle or business pursuits. The home has an incredible flow to the layout and the living spaces are expansive and light filled. Set on a large flat block the property features a grand 5-7 bedroom homestead and an exceptional array of secure, expansive shedding, all surrounded by established gardens and open rural views. Landmark Residence Steeped in history and character, the original homestead exudes warmth and presence. Generous proportions, high ceilings, and outdoor entertaining spaces capture the essence of classic country living while providing the comfort and functionality of a modern family home. Key residential features include: • 5-7 bedrooms with flexible floorplan options • Two large living and entertaining areas • Custom-built country kitchen flowing to open-plan living and dining • Two ducted evaporative cooling systems, ceiling fans, and a slow-combustion wood heater • Large main bathroom plus a secondary bathroom adjoining the laundry • Expansive outdoor entertaining spaces and a fully fenced yard, ideal for children and pets • Extensive Shedding & Infrastructure • Purpose-built for practicality and versatility, ZINBAR offers a truly rare scale of shedding and storage rarely found in residential or mixed-use holdings. Extra Infrastructure Highlights Include: • 345sqm workshop with 3-phase and 240v power, divided into four secure work areas • Two additional storage sheds offering a combined 984sqm of undercover space • Secure horse stable with room for 2+ stalls, plus dedicated feed and tack storage • Bore water supply with ample storage tanks ensuring long-term water security • Whether for business operations, vehicle storage, hobby farming, or creative pursuits, this infrastructure provides outstanding flexibility and peace of mind. Commercial & Lifestyle Potential Beyond the residence, ZINBAR's rich history as the original Wingen General Store (circa 1872) - now home to Burning Mountain Antiques - presents a unique commercial opportunity. With 420sqm of display space and adjoining heritage buildings (including the former Wingen Post Office and Wine Bar), this property lends itself to a wide range of uses, from boutique accommodation to studio space, retail, or hospitality. The sellers are genuine and ready to move. Bring your ideas today and secure this irreplaceable piece of Upper Hunter history.
Location
Address
"Zinbar" 5 Stirling Street, Wingen NSW 2337
City
Wingen
Features and Finishes
None
Legal Notice
Our comprehensive database is populated by our meticulous research and analysis of public data. MirrorRealEstate strives for accuracy and we make every effort to verify the information. However, MirrorRealEstate is not liable for the use or misuse of the site's information. The information displayed on MirrorRealEstate.com is for reference only.