Lord Cullen House, 127 Causewayend, 阿伯丁, AB25 3UB

出售 GBP 575000

房产图片

16 张图片
房产详情
商业物业
房产类型

其他信息
地块信息
停车信息
预估税费

描述

物业详情: • 类型:商业物业 • 权属:无 • 建筑面积:无

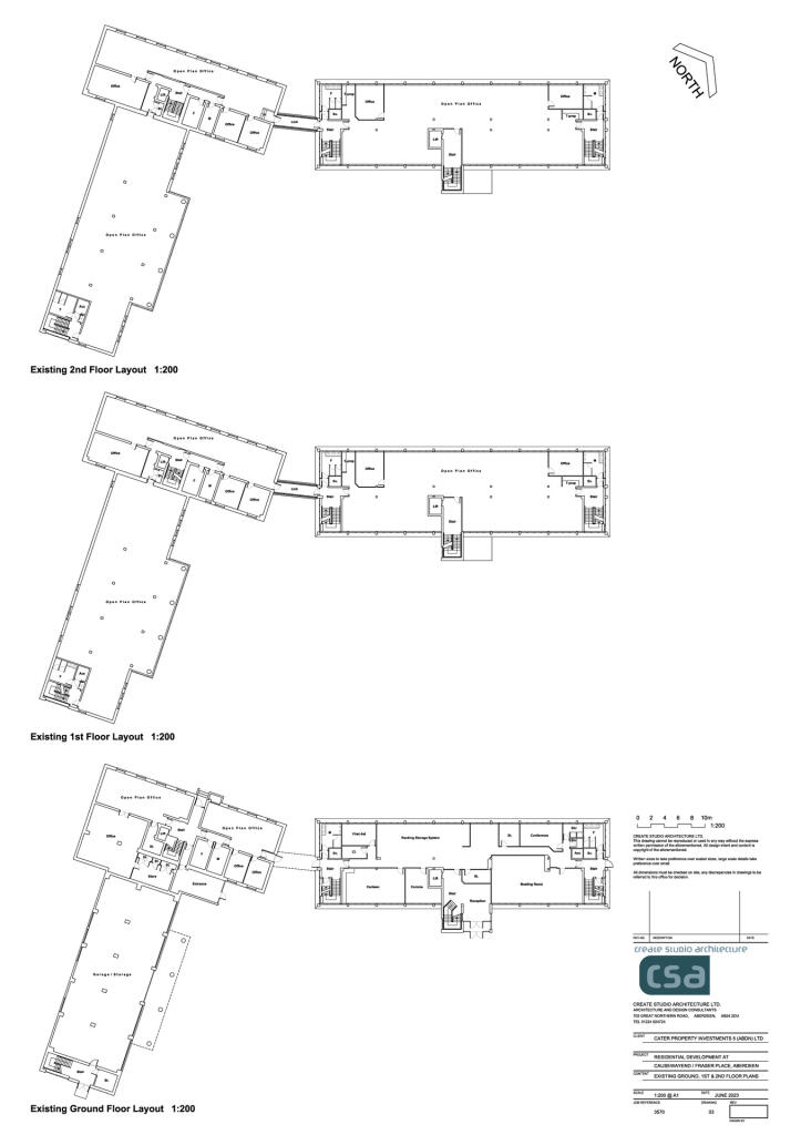
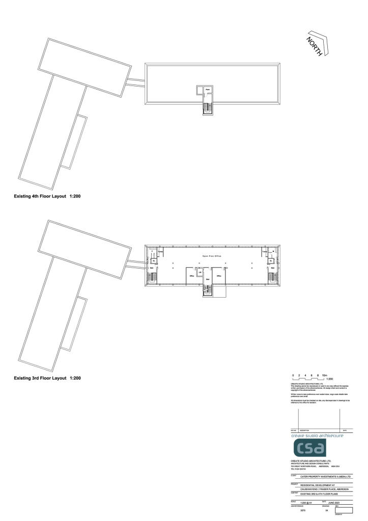
主要特色: • 优质开发潜力 • 面积约为 4,069 平方米 • 两个主要相连的楼块,三/四层 • 位置优越,步行可至阿伯丁大学及市区设施 • 增值税已选定物业

位置: • 最近的车站:无 • 到车站的距离:无

代理信息: • 地址:格拉斯哥,蒙罗广场 46 号, 建筑 3, 安妮斯兰, G13 2UP

完整描述: 开发潜力

如果您正在寻找一个临近阿伯丁市中心的卓越开发机会,这个庞大的前办公楼群定会吸引您的注意。该物业靠近阿伯丁大学,具有巨大的开发潜力。物业目前布局为三/四层,总面积约为 4,069 平方米,由两个主要楼块通过封闭走道相连。最近一次使用者为健康与安全执行局、VisitScotland 和气象局,现在提供空置交付。

该地块已获得阿伯丁市议会根据编号 250101/PREAPP 的预规划申请批准,提出开发最多 70 个住宅单位的方案。鉴于其靠近大学及对学生和私人住宿的强烈需求,该物业在转为住宅、混合用途或专用学生住房(需完整规划批准)方面具有极佳潜力。

总共有 58 个现场停车位,以及一楼车库。部分停车区域和车库目前以非收入性质的非正式租赁方式使用,其余停车由第三方停车提供商管理,也仅产生象征性收入。两种安排均可提前一个月通知终止。

位于靠近阿伯丁大学、交通便利的区域,方便前往国王街、老阿伯丁和市中心。公共交通和本地设施发达,是未来住宅或现代化商业开发的理想位置。 建议提前实地考察,以充分了解这处地标性物业的规模、灵活性和巨大潜力。请注意,该物业已选择增值税。

Lord Cullen House 地理位置便利,距离阿伯丁市中心约 1.5 英里。当地设施丰富,市中心提供更全面的配套。附近有阿伯丁海滩,也靠近阿伯丁大学。

购房者须知 请注意,这些说明由我们根据客户提供的信息编写。如需澄清任何内容或觉得有误导之处,请联系本公司,我们将提供更多信息。

• 未对服务、设备或配件进行测试。 • 不对建筑物、服务、固定装置、配件等的状况提供任何担保或暗示。 • 所有测量、距离和面积均为近似值。 • 除非在详细资料中注明,否则不包括固定装置、配件及其他物品。

本资料受版权法保护。版权归苏格兰拍卖行所有。物业信息表是我们数据库的一部分,受数据库权利和版权法保护。未经许可,禁止擅自复制或分发。苏格兰拍卖行正在革新苏格兰的物业销售方式。

请记住,如果您购买由苏格兰拍卖行出售的物业,通常需支付购买者佣金或拍卖费,金额为购买价的 3.6%,最低为 £3600(含增值税)。详情请咨询。

网络犯罪警告: 请注意,网络诈骗风险较高,尤其影响电子邮件账户和银行账户信息。请注意,我们的银行账户信息在交易过程中不会更改,也不会通过电子邮件更改。如有疑问,请务必亲自核实账户信息。如将款项转入错误账户,我们不承担责任。能源性能证书(EE)

位置

地址
Lord Cullen House, 127 Causewayend, 阿伯丁, AB25 3UB

地图

特色与装修

优质开发潜力,面积约为 4,069 平方米,两个主要相连的楼块,三/四层,位置优越,步行可至阿伯丁大学及市区设施,增值税已选定物业

房地产经纪人
苏格兰拍卖行,格拉斯哥

Auction House Scotland, Glasgow

房源操作
查看原始房源

分享这个房源
房源统计
0
收藏
5
浏览
法律声明

我们的综合数据库是通过对公共数据的仔细研究和分析而建立的。 MirrorRealEstate致力于确保信息的准确性,我们会尽一切努力验证信息。但是, MirrorRealEstate不对网站信息的使用或误用负责。MirrorRealEstate.com上显示的信息仅供参考。

This website uses cookies to ensure you get the best experience. Learn more