331 D Street, Ramona, CA 92065

USD 4200 For Sale
MLS: NDP2511501

Property Details

Bathrooms

2

Description

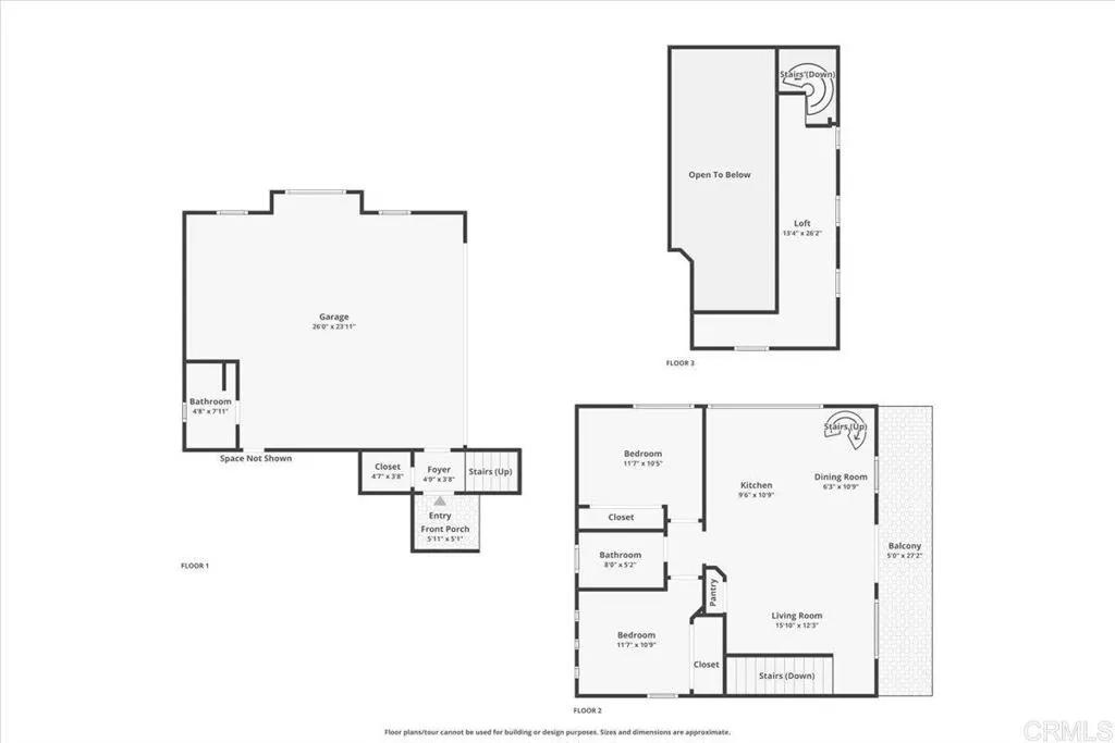
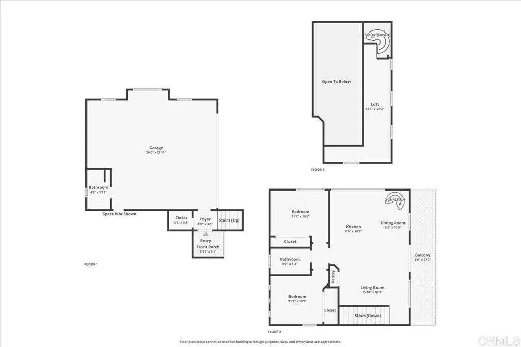
Welcome to The Lofts, a newly completed six-unit luxury residential development delivering a level of design, craftsmanship, and rental quality unmatched in the Ramona market. Ideally located within walking distance of Ramona's vibrant downtown village core, residents enjoy convenient access to local restaurants, caf s, shopping, bars, and grocery stores. This thoughtfully executed community presents a rare opportunity to lease a modern, high-quality home in one of San Diego County's most supply-constrained and steadily growing submarkets. The Lofts is comprised of two custom-built, three-unit residential buildings - each a mirrored counterpart - featuring the following thoughtfully designed residences: Four (4) 1,050 sq. ft. two-bedroom, two-bath homes with bonus loft spaces and greatly oversized private two-car garages. Two (2) 453 sq. ft. fully self-contained one-bedroom, one-bath residences with in-unit laundry and two reserved parking spaces. Architecturally, The Lofts blends clean mid-century modern lines with the warmth of modern farmhouse design, resulting in an aesthetic that feels both contemporary and timeless while integrating seamlessly into the surrounding community. Defined by a level of quality rarely found in the rental marketplace, residences feature vaulted wood-beamed ceilings, integrated smart-home technology, multi-purpose mid-span lofts, solar power, wireless digital entertainment infrastructure, custom iron work, premium finishes, abundant storage throughout, and professionally designed landscaping. Oversized private garages and efficient floor plans further enhance everyday livability, reflecting a home designed with intention and longevity in mind. The Lofts were curated for professionals and couples seeking a controlled, high-quality living environment that emphasizes efficient layouts, superior materials, and elevated design standards. True to the philosophy of quality over quantity, this limited six-unit offering prioritizes thoughtful design, functionality, and pride of residence. As rental demand in Ramona continues to rise - driven by limited housing supply and increasing homeownership costs - The Lofts stands as a rare opportunity for long-term residents to secure a beautifully crafted home with contemporary conveniences in a premier village-adjacent location.

PROPERTY DETAILS: Square Feet: 1050 | Bathrooms: 2

INTERIOR FEATURES: • Flooring: Tile • Cooling: Central Air, Electric, Ceiling Fan(s) • Heating: Electric Heating, Central • Doors/Windows: Double Pane Windows, ENERGY STAR Qualified Windows, Plantation Shutters, Shutters • Fireplaces: None • Security: 24 Hour Security, Carbon Monoxide Detector(s), Closed Circuit Camera(s), Fire Sprinkler System, Firewall(s) • Additional Interior Features: Beamed Ceilings, Built-in Features, Ceiling Fan(s), Crown Molding, High Ceilings, Storage, Wired for Data

EXTERIOR FEATURES: • Parking: 2 Garage Spaces, 2 Parking Spaces, Assigned, Driveway, Garage, Garage Faces Front, Garage Door Opener, Guest, On Site, Oversized, See Remarks. • Pool Description: None • Lot View: Hill, Mountain, Other, Trees/Woods, Pasture • Zoning: RMV4 • Structural Condition: New Construction • Additional Exterior/Lot Features: Balcony, Oversized Parking

LISTING AGENT: Agent: Brandon Powell | Office: ReMax Direct | Phone: 760-533-6463 | Email: [email protected]

LISTING INFORMATION: MLS#: NDP2511501

Location

Address

331 D Street

City

Ramona

Features and Finishes

Interior Features:

• Flooring: Tile

• Cooling: Central Air, Electric, Ceiling Fan(s)

• Heating: Electric Heating, Central

• Doors/Windows: Double Pane Windows, ENERGY STAR Qualified Windows, Plantation Shutters, Shutters

• Fireplaces: None

• Security: 24 Hour Security, Carbon Monoxide Detector(s), Closed Circuit Camera(s), Fire Sprinkler System, Firewall(s)

• Additional Interior Features: Beamed Ceilings, Built-in Features, Ceiling Fan(s), Crown Molding, High Ceilings, Storage, Wired for Data

Exterior Features:

• Parking: 2 Garage Spaces, 2 Parking Spaces, Assigned, Driveway, Garage, Garage Faces Front, Garage Door Opener, Guest, On Site, Oversized, See Remarks.

• Pool Description: None

• Lot View: Hill, Mountain, Other, Trees/Woods, Pasture

• Zoning: RMV4

• Structural Condition: New Construction

• Additional Exterior/Lot Features: Balcony, Oversized Parking

Legal Notice

Our comprehensive database is populated by our meticulous research and analysis of public data. MirrorRealEstate strives for accuracy and we make every effort to verify the information. However, MirrorRealEstate is not liable for the use or misuse of the site's information. The information displayed on MirrorRealEstate.com is for reference only.

Real Estate Broker
Brandon Powell
Brokerage
ReMax Direct
Likes

0

Views

15

This website uses cookies to ensure you get the best experience. Learn more