2 Crown Gate , Severalls Park , Colchester, Essex

GBP 8292 For Rent

Property Details

Property Type

8,275 sq ft

Description

Property Details: • Type: 8,275 sq ft • Tenure: N/A • Floor Area: N/A

Key Features: • Pending Light Refurbishment • Large Warehouse Area • Ground & First Floor Offices • Kitchenette & W/C Facilities • Fourteen Car Parking Bays • Close to Screwfix & Toolstation • Adjacent to A12 / A120

Location: • Nearest Station: Colchester Station • Distance to Station: 2.1 miles

Agent Information: • Address: 882 Colchester Business Park The Crescent, Colchester Business Park, Colchester, CO4 9YQ

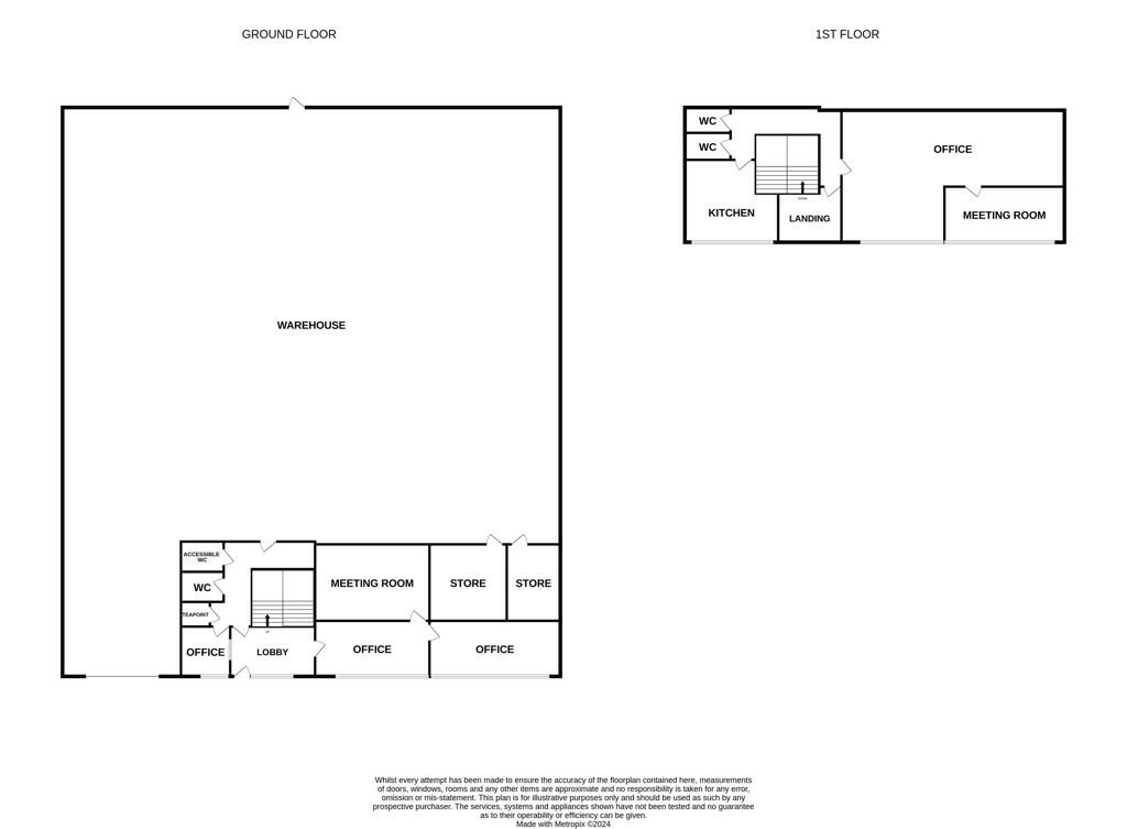
Full Description: The premises are of steel portal frame construction under a pitched and insulated roof, incorporating transparent roof lights, with part brick and part clad elevations. The warehouse is accessed via a large loading door (approx. 3.5m wide by 4.5m high) and features an eaves height of c. 6.0m and an apex height of c.6.15m, lighting and a three phase power supply.There are ground and first floor offices to the front elevation with ample windows providing natural daylight. The office specification is to include; carpets and suspended ceilings with LED lighting and electric heating. Kitchenette and WC facilities are also provided on both the ground and first floor.There is a self contained forecourt to the front of the premises, providing ample loading / unloading and fourteen marked car parking bays. Note: The premises are due to undergo light refurbishment with works due to be completed Q3 2024.LOCATIONThe property is prominently located at Crown Gate, off Wyncolls road, on the very well established Severalls Industrial Park, which is adjacent to the A12/A120 interchange providing easy access to Stansted Airport, the East Coast ports of Harwich and Felixstowe, and the national motorway network. Nearby occupiers include: Peach Guitars, Edmundson Electrical, BSS, Crown Paints, Screwfix, Toolstation, and Motorparts Direct.ACCOMMODATION (Approximate gross internal measurements)Warehouse Approx. 5,833 sq ft (541.9 sq m)Ground Floor Offices/Facilities Approx. 1,221 sq ft (113.4 sq m)First Floor Offices/Facilities Approx. 1,221 sq ft (113.4 sq m)Total Approx. 8,275 sq ft (768.7 sq m)TERMS The premises are available To Let on a new full repairing and insuring lease, with lease length and terms to be agreed, at a rent of £99,500 per annum, plus VAT.SERVICE CHARGEA service charge is applicable to cover; maintenance and cleaning of the estate communal areas, and estate signage and pest control. The approx. cost for the current year is £3,378.18.BUILDINGS INSURANCEThe buildings insurance is to be arranged by the landlord with the cost to be recovered from the tenant. The approx. cost for the current year is £4,292.17.BUSINESS RATES We have been advised that the current rateable value of the premises is £67,000. We therefore estimate that the rates payable are likely to be in the region of £36,600 per annum. Interested parties are advised to make their own enquiries with the local rating authority to confirm their liabilities.ENERGY PERFORMANCE CERTIFICATE [EPC] A full copy of the EPC assessment and recommendation report will be available upon completion of the refurbishment, from our office upon request. VATVAT will be applicable on the rent and service. All rents and prices are exclusive of VAT under the Finance act 1989.PLANNINGWe are advised that the premises have historically been used for industrial, storage, and distribution purposes falling under use classes B2, B8 and E of the use classes order 2020. Interested parties are advised to make their own enquiries with Colchester City CouncilLEGAL COSTSEach party will bear their own legal costs.ANTI-MONEY LAUNDERING REGULATIONS Anti-Money Laundering Regulations require Fenn Wright to formally verify a prospective tenants identity prior to the instruction of solicitors. VIEWINGS STRICTLY BY APPOINTMENT VIA SOLE LETTING AGENTS:Fenn WrightT: E:

Location

Address

2 Crown Gate , Severalls Park , Colchester, Essex

City

Colchester

Features and Finishes

Pending Light Refurbishment, Large Warehouse Area, Ground & First Floor Offices, Kitchenette & W/C Facilities, Fourteen Car Parking Bays, Close to Screwfix & Toolstation, Adjacent to A12 / A120

Legal Notice

Our comprehensive database is populated by our meticulous research and analysis of public data. MirrorRealEstate strives for accuracy and we make every effort to verify the information. However, MirrorRealEstate is not liable for the use or misuse of the site's information. The information displayed on MirrorRealEstate.com is for reference only.

Real Estate Broker
Fenn Wright, Colchester Business Park Commercial Sales & Lettings
Brokerage
Fenn Wright, Colchester Business Park Commercial Sales & Lettings
Top Tags
Likes

0

Views

78

This website uses cookies to ensure you get the best experience. Learn more