7/4 Osmond Terrace, Norwood SA 5067
Property Details
2
1
House
Description
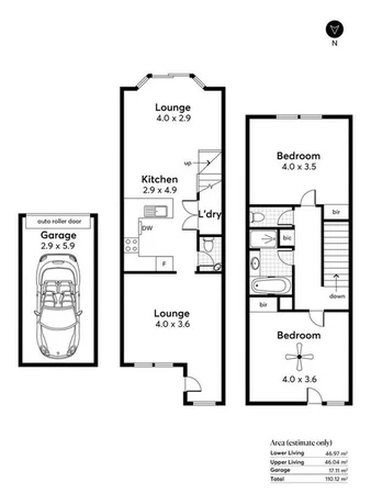
Property Details: • Type: House
• Bedrooms: 2 • Bathrooms: 1
Description: Perfectly positioned on prestigious Osmond Terrace, this home offers an unparalleled blend of tranquility and urban convenience, ready for you to move in. Nestled beside the serene Richards Park, surrounded by leafy greenery and the soothing sounds of nature. Tucked away down a secluded driveway with a gate entrance, this residence ensures both privacy and peace of mind. Added comforts include:- * Two generously sized bedrooms both with built in robes; * Balcony to the main bedroom overlooking Richards park; * Open plan living area; * Upgraded kitchen with modern benchtops & appliances; * Laminate timber floors throughout the lower level; * NBN ready for seamless connectivity; * Ducted reverse cycle air-conditioning for year-round comfort; * European laundry integrated into the kitchen for your convenience; * Updated main bathroom upstairs plus separate toilet and second toilet downstairs; * Single lock-up garage plus an additional parking space; * Private courtyard; Just steps away from Magill road and The Parade within walking distance for boutique shopping and dining. Ideally located close to public transport and zoned for Norwood Primary and Marryatville High School. Don't miss out on this opportunity to call this house your home, offering comfort and value for money. NOTE ABOUT THE OPEN INSPECTIONS: Interested persons MUST register their details to attend any of the scheduled viewing dates and times allocated. The agent will not attend the listed viewing date and time if you do not register and confirm your attendance. It is for this reason we highly recommend you register to attend to ensure the agent's attendance and to avoid disappointment. Disclaimer: All information provided has been obtained from sources we believe to be accurate, however, we cannot guarantee the information is accurate and we accept no liability for any errors or omissions. We encourage all interested parties to make their own enquiries, particularly regarding NBN/internet availability at the property.
Location
Address
7/4 Osmond Terrace, Norwood SA 5067
City
Norwood
Features and Finishes
None
Legal Notice
Our comprehensive database is populated by our meticulous research and analysis of public data. MirrorRealEstate strives for accuracy and we make every effort to verify the information. However, MirrorRealEstate is not liable for the use or misuse of the site's information. The information displayed on MirrorRealEstate.com is for reference only.