88 Rosslyn Avenue
Property Details
3
2
Owner
Description
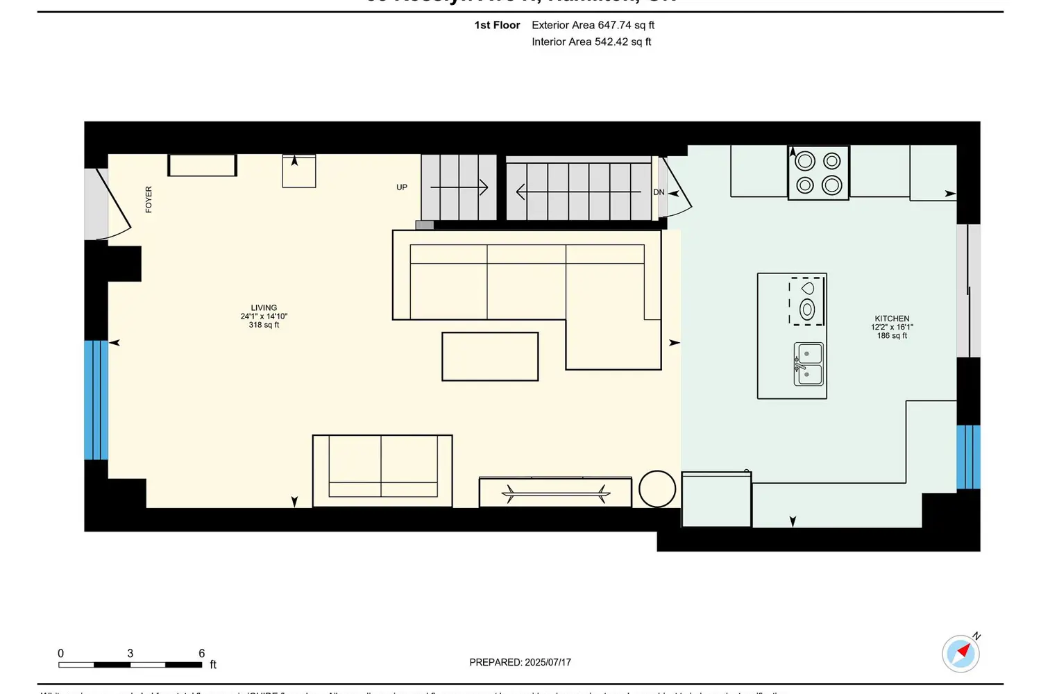
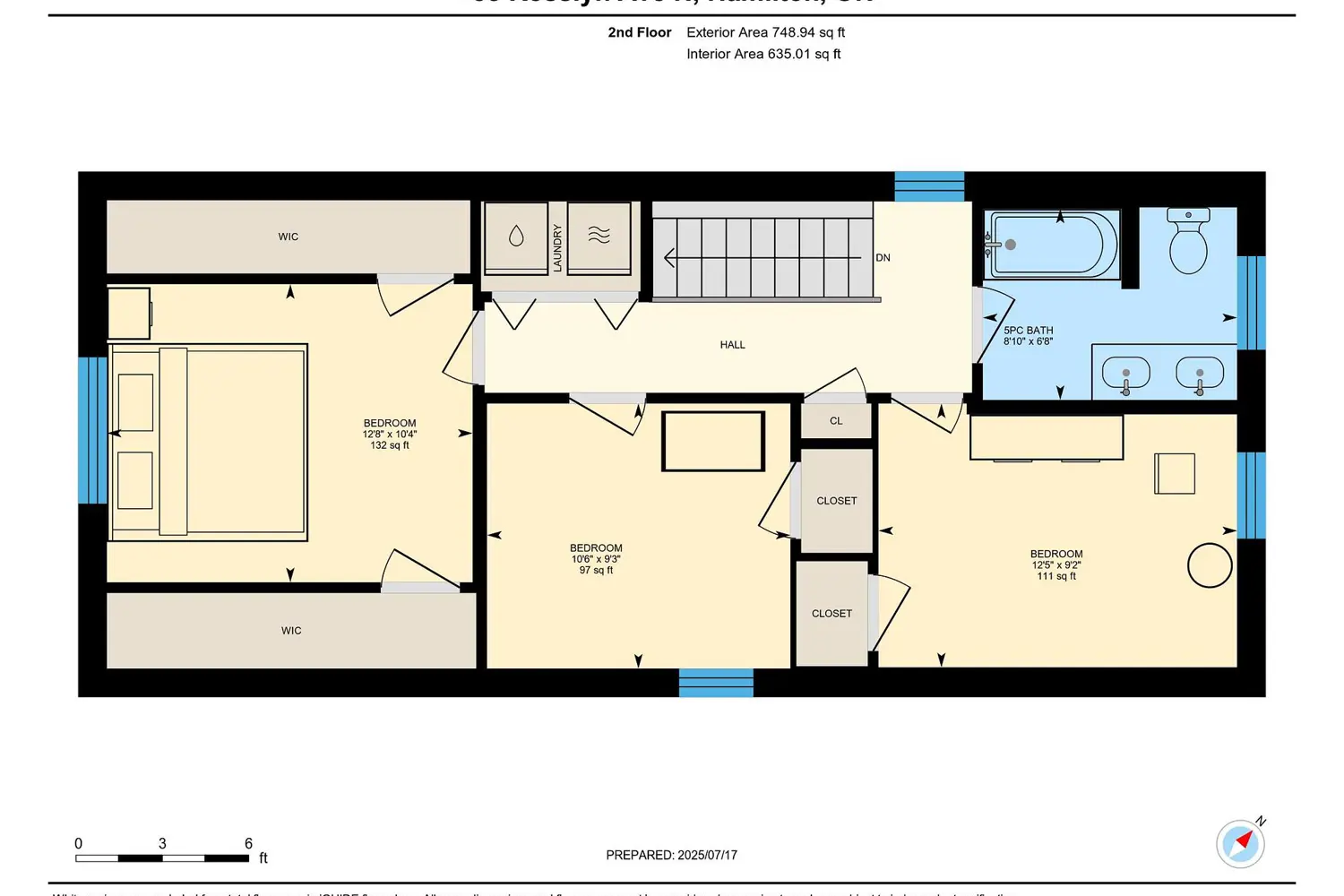
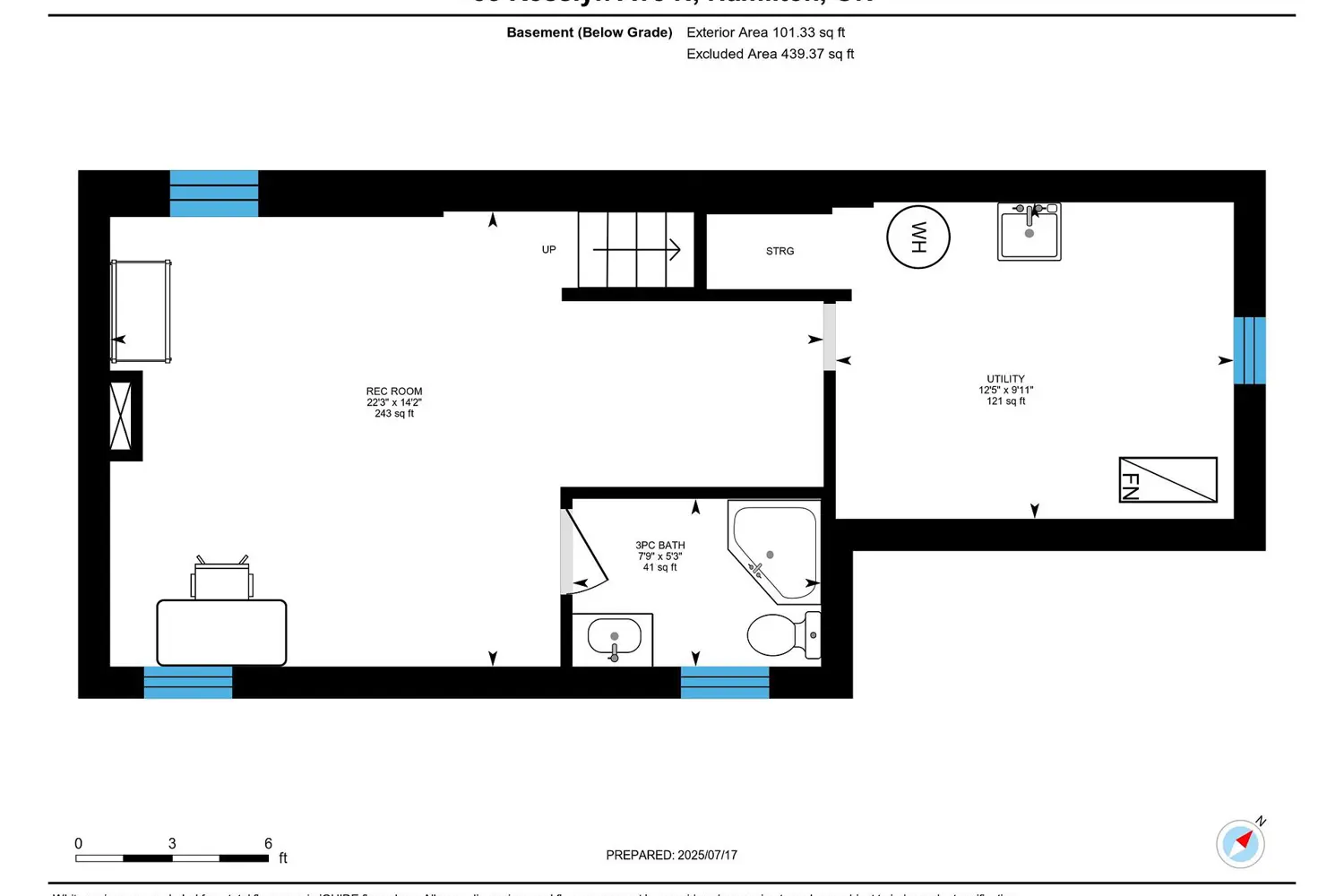
Rare fully updated to a modern family home. Completely redone right back to the studs with all new electrical, plumbing and insulation. Open concept main floor, finished basement complete with full bath, cathedral ceiling bedrooms and spa like master bath. Just move in and enjoy the central downtown location in a great neighborhood, close to Ti-Cat stadium, Gage Park, shopping, schools and highway access. This is a complete turn key home with nothing to do but enjoy.
Location
Address
88 Rosslyn Avenue
City
Coventry
Features and Finishes
None
Legal Notice
Our comprehensive database is populated by our meticulous research and analysis of public data. MirrorRealEstate strives for accuracy and we make every effort to verify the information. However, MirrorRealEstate is not liable for the use or misuse of the site's information. The information displayed on MirrorRealEstate.com is for reference only.