9 Boyles Court, Dark Lane,, CM14

GBP 995000 For Sale

Property Details

Property Type

Terraced

Description

Property Details: • Type: Terraced • Tenure: N/A • Floor Area: N/A

Key Features: • 16 acres of private parkland • Allocated parking/ Garage/ Carports • Private gated luxury development • All appliances included • Underfloor heating • Electric vehicle charging point • Not all photos are plot specific

Location: • Nearest Station: N/A • Distance to Station: N/A

Agent Information: • Address: 77 - 79 High Street Brentwood CM14 4RR

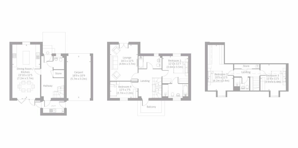
Full Description: A luxury four bedroom, three bathroom traditional mews style family home, located on the brand new development, Boyles Court. Set in 16 acres of parkland and accessed via gates, it provides the perfect balance of countryside living whilst still being located close to the popular commuter town of Brentwood.Measuring approximately 1686sq ft, is this four bedroom mews style terraced home, finished to an extremely high specification throughout and benefitting from an en-suite to the master bedroom, integrated German appliances and carport. Featuring Quartz work surfaces in a beautifully designed kitchen, the spacious open plan layout boasts bi-fold doors to a private garden, that fills the space with natural light complementing modern day living. Also on the ground floor is a utility room, WC and ample storage space. On the first floor there is a private balcony, two bedrooms, the master boasting an en-suite bathroom. Also on the first floor is a luxury modern family bathroom with British made imperial sanitaryware and towel rail. A spacious lounge provides the perfect space for the family to relax, entertain and enjoy the views of the landscaped private communal gardens. Warley is a suburb of Brentwood in Essex, situated to the south of the town. With the countryside on your doorstep and situated on the outskirts of Brentwood Boyles Court is ideally located with easy access to both the A12, M25 and the mainline railway station of Brentwood. Marden Homes was established in 1989 and design and build high-quality, stylish new homes across Essex, the South East and London. Boyles Court is their latest development, bringing the original 1776 Grade II-listed house back to its former glory. The full luxury refurbishment has been seamlessly combined with a mews of luxury new build houses, providing a total of 30 properties situated behind the gated development of 16 acres. Each property has been thoughtfully designed with modern kitchens, fitted with appliances. The flooring comes as standard with underfloor heating where possible. Each property has either allocated parking, car ports or garages together with an electric vehicle charging point. *Owners will own a share of the management company**Images from show home for marketing and indicative purpose only.** A service charge for the upkeep of the communal areas and grounds of £1,316.66pa applies .Entrance HallKitchen/ Dining Room23' 10" x 12' 5"Utility RoomWCLandingLounge16' 2" x 12' 5"BalconyMaster Bedroom12' 1" x 11' 7"Ensuite BathroomBedroom Four12' 5" x 7' 5"BathroomLandingBedroom Two20' 5" x 11' 5"Bedroom Three11' 9" x 11' 5"BathroomCarport18' 9" x 10' 9"

Location

Address

9 Boyles Court, Dark Lane,, CM14

City

Monroe

Features and Finishes

16 acres of private parkland, Allocated parking/ Garage/ Carports, Private gated luxury development, All appliances included, Underfloor heating, Electric vehicle charging point, Not all photos are plot specific

Legal Notice

Our comprehensive database is populated by our meticulous research and analysis of public data. MirrorRealEstate strives for accuracy and we make every effort to verify the information. However, MirrorRealEstate is not liable for the use or misuse of the site's information. The information displayed on MirrorRealEstate.com is for reference only.

Real Estate Broker
Beresfords, at Brentwood
Brokerage
Beresfords, at Brentwood
Top Tags
luxury four bedroom
Likes

0

Views

28

This website uses cookies to ensure you get the best experience. Learn more