Asbury Court, Birmingham, B43

GBP 167500 For Sale

Property Details

Bedrooms

2

Bathrooms

2

Property Type

Flat

Description

Property Details: • Type: Flat • Tenure: N/A • Floor Area: N/A

Key Features: • Two Double Bedrooms • Spacious Living Room • Popular And Convenient Residential Location • Short Drive From The M6/M5 And Sandwell Hospital

Location: • Nearest Station: N/A • Distance to Station: N/A

Agent Information: • Address: Purplebricks, 650 The Crescent Colchester Business Park, Colchester, United Kingdom, CO4 9YQ

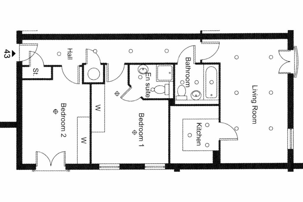
Full Description: The PropertyThis well-appointed two-bedroom, top (2nd) floor flat, is situated in Asbury Court, Great Barr, Birmingham. Bordering Sandwell Valley Country Park, and around the corner from local shops and amenities (only 10 mins from the M6/M5) the location offers the convenience of city living with the added benefits of being close to a rural landscape.In terms of public facilities, Asbury Court is 10 mins from Sandwell General Hospital, and in the catchment area of schools from nurseries to academies. Access to public transport includes a bus stop on the doorstep, cycle routes, Hamstead (Birmingham) Train Station a 10 min car-ride away, and easy access to the M6/M5 (meaning Birmingham International Airport can be reached in 35 mins).The flat comprises a hallway, master bedroom with en-suite, a second double bedroom, separate family bathroom, a generous lounge/diner and fitted kitchen. *APPROX 800 SQUARE FOOT*. The property comes with an allocated parking space and access to communal gardens. Sandwell Valley is bisected by National Cycle Route 5 (which runs for just over 360 miles from Reading to North Wales).and contains the Country Park, an RSPB Nature Reserve, two golf clubs, a riding centre, woods, walks, and a farm. With excellent transport routes and numerous local attractions, Asbury Court is the ideal location for both work and play.(Photos and decoration for illustration only).Property ownership informationGround rent review period: No review periodService charge review period: No review periodLease end date: 01/01/2129Property Description DisclaimerThis is a general description of the property only, and is not intended to constitute part of an offer or contract. It has been verified by the seller(s), unless marked as 'draft'. Purplebricks conducts some valuations online and some of our customers prepare their own property descriptions, so if you decide to proceed with a viewing or an offer, please note this information may have been provided solely by the vendor, and we may not have been able to visit the property to confirm it. If you require clarification on any point then please contact us, especially if you’re traveling some distance to view. All information should be checked by your solicitor prior to exchange of contracts.Successful buyers will be required to complete anti-money laundering checks. Our partner, Lifetime Legal Limited, will carry out the initial checks on our behalf. The current non-refundable cost is £80 inc. VAT per offer. You’ll need to pay this to Lifetime Legal and complete all checks before we can issue a memorandum of sale. The cost includes obtaining relevant data and any manual checks and monitoring which might be required, and includes a range of benefits. Purplebricks will receive some of the fee taken by Lifetime Legal to compensate for its role in providing these checks.BrochuresBrochure

Location

Address

Asbury Court, Birmingham, B43

City

Birmingham

Features and Finishes

Two Double Bedrooms, Spacious Living Room, Popular And Convenient Residential Location, Short Drive From The M6/M5 And Sandwell Hospital

Legal Notice

Our comprehensive database is populated by our meticulous research and analysis of public data. MirrorRealEstate strives for accuracy and we make every effort to verify the information. However, MirrorRealEstate is not liable for the use or misuse of the site's information. The information displayed on MirrorRealEstate.com is for reference only.

Real Estate Broker
Purplebricks, covering Birmingham
Brokerage
Purplebricks, covering Birmingham
Top Tags
two-bedroom
Likes

0

Views

49

This website uses cookies to ensure you get the best experience. Learn more