Building Plot, Chapel Road, Steeton, BD20 6NU
Property Details
4
2
Detached
Description
Property Details: • Type: Detached • Tenure: FREEHOLD • Floor Area: N/A
Key Features: • Exciting Development Opportunity • The house will enjoy picturesque Views • Close to local Amenities and Services • Freehold Development
Location: • Nearest Station: Steeton & Silsden Station • Distance to Station: 0.5279670222180296 miles
Agent Information: • Address: 1 Unicorn House Keighley Road, Skipton, BD23 2LP
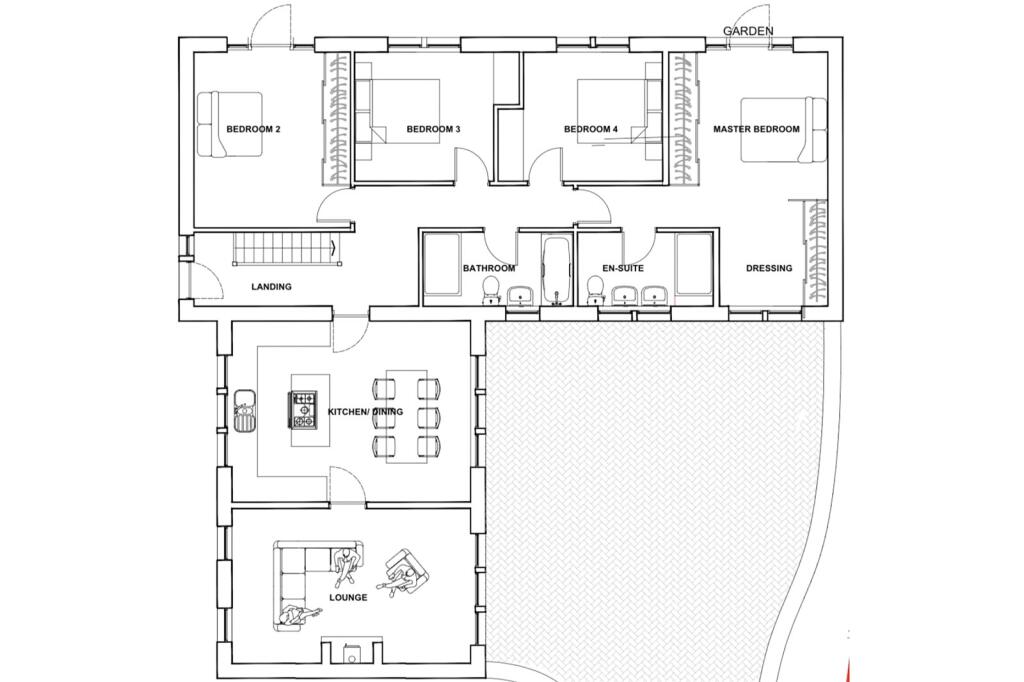
Full Description: An exciting opportunity to acquire a building plot situated in a very popular and well established residential area. OFFERED WITH PLANNING APPROVAL for a detached four bedroomed family-sized house. Extending to approximately 0.124 acres, the site benefits from approval for a spacious and contemporary residence, making it an ideal prospect for developers, self-funded builders, or discerning ambitious buyers looking to create a bespoke long term home tailored to their needs.<br /><br />Planning consent was granted by way of a successful planning appeal submission dated 17th June 2022. The approved designs provides a double garage and utility room on the lower ground floor. Most of the proposed accommodation will be on the ground floor and includes a living room, a spacious dining kitchen, a principal bedroom with en-suite facilities, three additional bedrooms and a house bathroom. The gross internal floor area of the new home will be circa 1,750 square feet / 163 square metres.<br /><br />The popular Aire Valley village of Steeton is ideally situated for road and rail commuters, providing easy access to all nearby business centres. Chapel Road is within comfortable walking distance of all local amenities which briefly include a mini supermarket, a convenience store, a primary school, a public house, two parks, a football/cricket club, nearby Airedale General Hospital complex, and a railway station providing regular daily services into Leeds, Bradford, Skipton and Keighley.<br /><br />BUILDING SITE AREA:<br />Approximately 0.124 of an acre (1,600 square yards or 501 square metres total).<br /><br />PLANNING:<br />Planning approval for the construction of one detached dwelling and associated works at Applegarth, Chapel Road, Steeton was granted on appeal by Planning Inspectorate on 17th June 2022. A copy of the appeal decision is available upon request. <br /><br />Bradford Council Ref: 21/04759/FUL<br /><br />Planning Inspectorate Ref: APP/W4705/W/22/3295245<br /><br />Please note: The CIL Charge of £3,920 has already been paid by the seller.<br /><br />Tenure: We have been informed that the land and its proposed dwelling is FREEHOLD. <br /><br />Viewing Arrangements: The plot is available to view at any time during daylight hours. Prospective purchasers are welcome to visit site independently, those wishing to be accompanied by a selling agent are invited to contact Harrison Boothman directly to arrange an escorted viewing.<br /><br />Conditions Of Sale: <br /><br />1. The new dwelling is to be built in accordance with planning application 21/04759/FUL unless otherwise agreed in writing with the seller.<br /><br />2. Within six weeks of completing the purchase, the buyers will be responsible for erecting a boundary fence. Constructed to a specification agreed prior to exchange of contracts - between the plot and the vendors’ retained property, Apple Garth.<br /><br />Tel: Skipton 799993<br /><br />Any floor plans are provided for informational and illustrative purposes only. Although we endeavour to provide truthful representation, we do not in any way warrant the accuracy of the floor plan information and the floor plan layout and measurements may contain errors and omissions. We are not liable for and do not accept any liability relating to any loss or damage suffered as a direct or indirect result of use of any information on the floor plan. The extent of the property and its boundaries are subject to verification by inspection of the title deeds.<br /><br />These particulars were prepared from observation together with information supplied by the Vendor. We have not carried out a detailed professional survey.<br /><br />Ref: MGLEDHILL20126<br /><br />If you are thinking of selling your property HARRISON BOOTHMAN will be pleased to provide a FREE VALUATION for sale purposes.<br /><br />
Location
Address
Building Plot, Chapel Road, Steeton, BD20 6NU
City
Steeton
Features and Finishes
Exciting Development Opportunity, The house will enjoy picturesque Views, Close to local Amenities and Services, Freehold Development
Legal Notice
Our comprehensive database is populated by our meticulous research and analysis of public data. MirrorRealEstate strives for accuracy and we make every effort to verify the information. However, MirrorRealEstate is not liable for the use or misuse of the site's information. The information displayed on MirrorRealEstate.com is for reference only.