Building Plot, Cliff Farm, East Morton
Property Details
Plot
Description
Property Details: • Type: Plot • Tenure: N/A • Floor Area: N/A
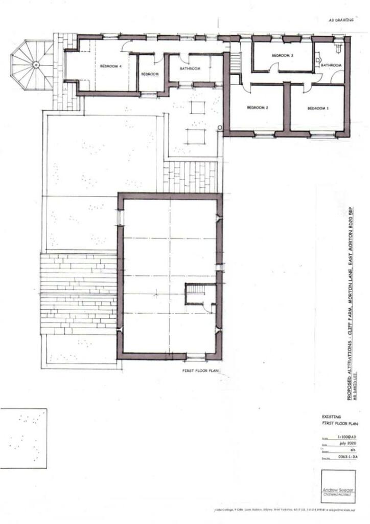
Key Features: • A rare building PLOT / Part conversion • Fine views over farmland • Large open-plan living-dining-kitchen • Family room with open fire • 4 double bedrooms. 2 Bathrooms • Good sized garden parking for 4 vehicles • All mains services installed to the PLOT • New double garage already built with power and lighting • 1.2 miles to Metro station. 9.5 to airport • Small exclusive development of just 3 homes
Location: • Nearest Station: Crossflatts Station • Distance to Station: 0.8 miles
Agent Information: • Address: 1 High Street, Skipton BD23 1AJ
Full Description: Nestled in the charming location of Cliff Farm, East Morton, lies an exceptional opportunity to create your dream home on this new build PLOT. This exclusive high-class development, part of a small community of just 3 family homes, offers a unique chance to be a part of something truly special.With 2 reception rooms, 4 bedrooms, and 2 bathrooms, this plot comes with planning permission to part demolish existing buildings, and extend with new-build to make for a substantial family home. Incorporating part of the West wing of the House 1. Imagine a large open plan living-dining-kitchen area, a separate living room, a study, and even a convenient laundry room - all designed to cater to your every need.One of the standout features of this property is the high-quality 6.5-meter double garage, already built and included in the sale, providing ample space for your vehicles and storage needs. Additionally, with parking available for up to 4 vehicles, you'll never have to worry about accommodating guests or family.Situated on a level site with fine views, this plot offers the perfect canvas for you to build the home you've always envisioned. All mains services are already connected to the plot, ensuring a smooth transition to your new abode.Don't miss out on the chance to be a part of this upcoming development in Cliff Farm. Embrace the opportunity to create a bespoke living space in a tranquil and picturesque setting. Contact us now to learn more about how you can turn this plot into your own slice of paradise.East Morton is a desirable village in West Yorkshire, and with Cliff Farm being close to the Leeds Liverpool Canal and the famous Ilkley Moors, both offering fabulous walking. There are two Metro train stations within 2 miles of the property, and Leeds Bradford Airport is just 9.5 miles away.BrochuresBuilding Plot, Cliff Farm, East MortonEnergy Performance CertificatesEE Rating
Location
Address
Building Plot, Cliff Farm, East Morton
City
Kessingland
Features and Finishes
A rare building PLOT / Part conversion, Fine views over farmland, Large open-plan living-dining-kitchen, Family room with open fire, 4 double bedrooms. 2 Bathrooms, Good sized garden parking for 4 vehicles, All mains services installed to the PLOT, New double garage already built with power and lighting, 1.2 miles to Metro station. 9.5 to airport, Small exclusive development of just 3 homes
Legal Notice
Our comprehensive database is populated by our meticulous research and analysis of public data. MirrorRealEstate strives for accuracy and we make every effort to verify the information. However, MirrorRealEstate is not liable for the use or misuse of the site's information. The information displayed on MirrorRealEstate.com is for reference only.