Chorley Old Road, Horwich, BL6 6QB

GBP 350000 For Sale

Property Details

Property Type

Land

Description

Property Details: • Type: Land • Tenure: N/A • Floor Area: N/A

Key Features: • Call .

Location: • Nearest Station: N/A • Distance to Station: N/A

Agent Information: • Address: Tudor House, 599 Chorley Old Road, Smithills, Bolton, BL1 6BL

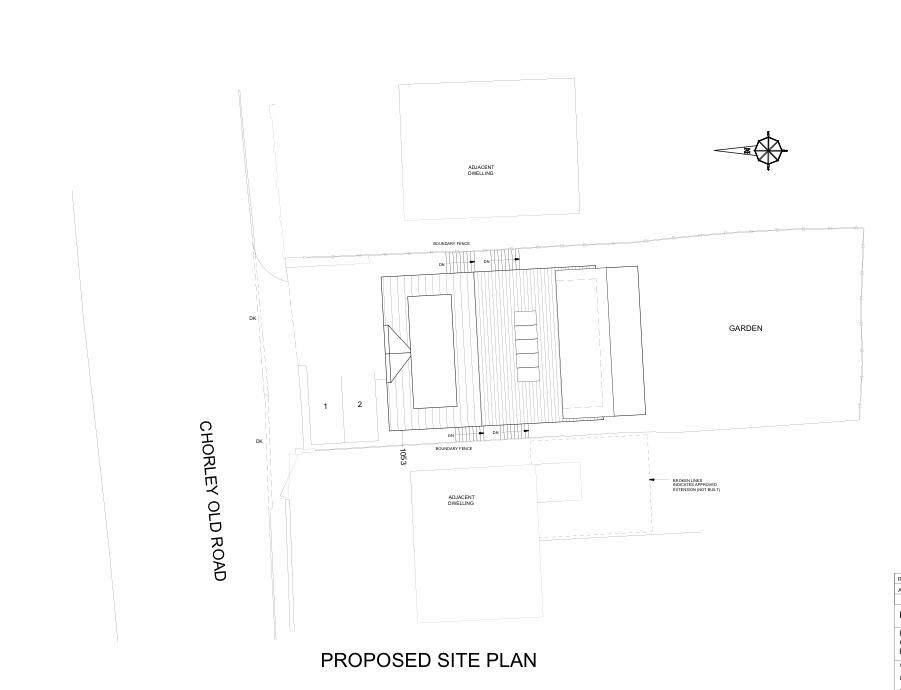
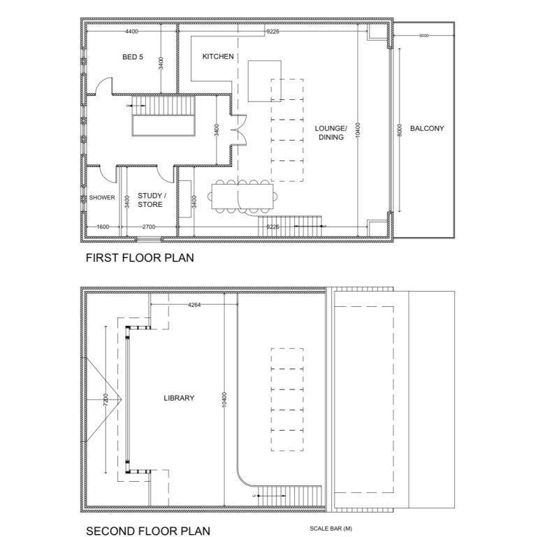
Full Description: An outstanding plot with planning permission to create a contemporary, family residence with exceptional views.

Bolton Council planning application number -  17816/24.

Situated on Chorley Old Road, occupied primarily by substantial home's. Set within the highly desirable suburban area of Horwich, overlooking countryside to the South West. Offers a rural retreat within close proximity of urban facilities. Bolton Town Centre, is within 3 miles via Chorley New Road, the M61 is accessible approximately 2.5 miles via Junction 6 at Middlebrook making the development well placed for commuting to the wider region or within the local area. Train stations are located at Bolton or Lostock, only 1.5m away with a 30 minute journey to Manchester Piccadilly. The highly regarded independent Bolton School is within 2 miles.

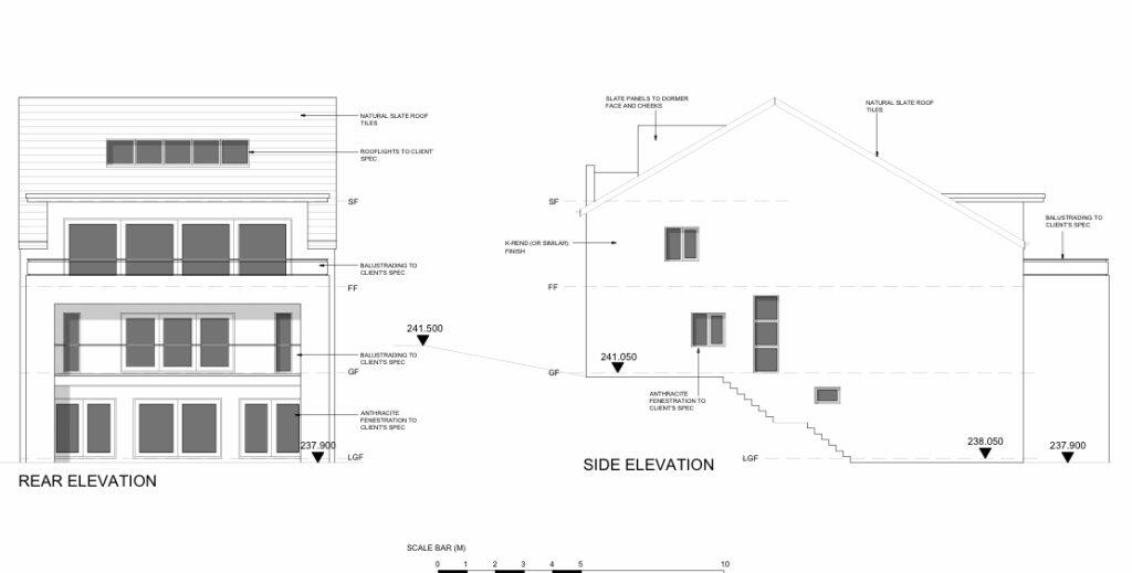
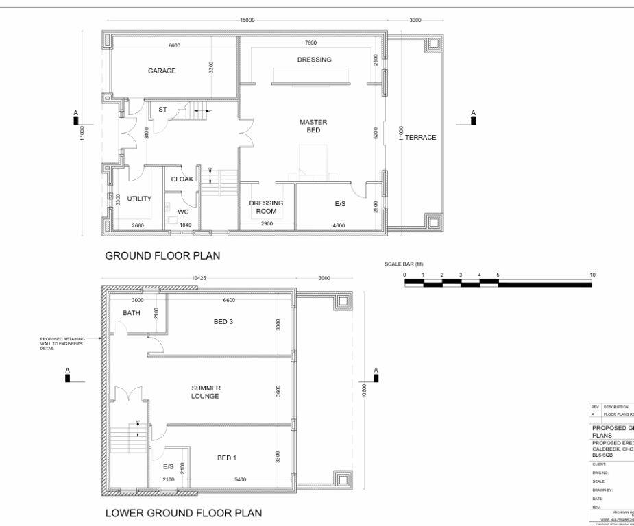
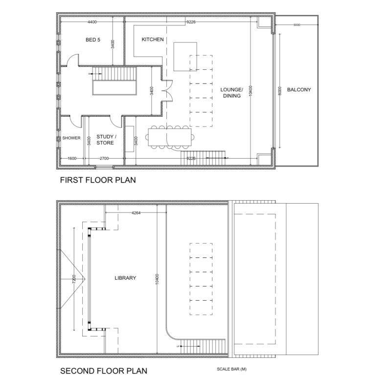
Please note: Image used for illustrative purposes only. Purely to provide an example of a concept and not to provide information about how the build will look.

Flood is Very low risk means that this area has a chance of flooding of less than 0.1% each year.

Location

Address

Chorley Old Road, Horwich, BL6 6QB

City

Horwich

Features and Finishes

Call .

Legal Notice

Our comprehensive database is populated by our meticulous research and analysis of public data. MirrorRealEstate strives for accuracy and we make every effort to verify the information. However, MirrorRealEstate is not liable for the use or misuse of the site's information. The information displayed on MirrorRealEstate.com is for reference only.

Real Estate Broker
PLM, Bolton
Brokerage
PLM, Bolton
Top Tags
Likes

0

Views

61

This website uses cookies to ensure you get the best experience. Learn more