Clay Lane, Oldbury, West Midlands, B69

GBP 399950 For Sale

Property Details

Property Type

Land

Description

Property Details: • Type: Land • Tenure: N/A • Floor Area: N/A

Key Features: • Planning Approved for 3x Four Bedroom Detached Dwellings • Freehold • 668.20 Square Meters

Location: • Nearest Station: Langley Green Station • Distance to Station: 0.6 miles

Agent Information: • Address: Apple House, 613 Walsall Road, Great Barr, Birmingham, B42 1EH

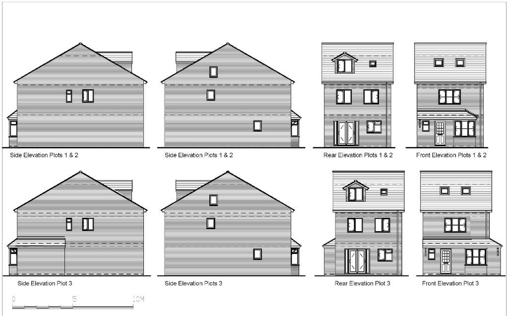
Full Description: Apple Property Solutions are Pleased to Offer this Fantastic Investment Opportunity to Purchase a Generous 668.20 Square Meter Plot of Land, Situated Upon Clay Lane, Oldbury. The Land Offers Approved Planning through Sandwell Council (DC/23/68173) for the Development of 3x Four Bedroom Detached Houses.

Location: Situated between 30 to 38 Clay Lane, Oldbury Birmingham, B69 4SY. 1.1 Miles to Junction 2 of the M5 Motorway. 1.4 Miles to Oldbury Town Centre & Train Station. 2.9 Miles to West Bromwich Town Centre & Train Station.

Planning Details: Approved Planning has Obtained and Granted through Sandwell Council to Build 3x Detached Four Bedroom Properties. Floor Plans describe each building to have Designs for the following:

Ground Floor: Reception Entrance, Downstairs Cloakroom W/C, Lounge, Fitted Kitchen/Dining Space.

First Floor: Reception Landing, Bedroom One with En-Suite Shower Room, Bedroom Two and Shower Room.

Second Floor: Bedroom Three, Bedroom Four and Separate Shower Room.

Tenure: Freehold.

Plot Size: 668.20 Square Meters / 7192.44 Square Feet.

Legal Costs: Each party to be responsible for their own legal costs incurred during this transaction.

Viewing: Strictly by prior appointment with the sole agents, Apple Property Solutions.

VAT: We understand that VAT is not payable on the transaction.

Agents Notes: 1. Money laundering regulations: Intending purchasers will be asked to produce identification documentation at a later stage. 2. General: While we endeavour to make our sales particulars fair, accurate and reliable, they are only a general guide to the property and, accordingly, if there is any point which is of particular importance to you, please contact the office and we will be pleased to check the position for you, especially if you are contemplating travelling some distance to view the property. 3. The measurements indicated are supplied for guidance only and as such must be considered incorrect. 4. Services: Please note we have not tested the services or any of the equipment or appliances in this property, accordingly we strongly advise prospective buyers to commission their own survey or service reports before finalising their offer to purchase. 5. These particulars are issued in good faith but do not constitute representations of fact or form part of any offer or contract. The matters referred to in these particulars should be independently verified by prospective buyers or tenants.

Location

Address

Clay Lane, Oldbury, West Midlands, B69

City

West Midlands

Features and Finishes

Planning Approved for 3x Four Bedroom Detached Dwellings, Freehold, 668.20 Square Meters

Legal Notice

Our comprehensive database is populated by our meticulous research and analysis of public data. MirrorRealEstate strives for accuracy and we make every effort to verify the information. However, MirrorRealEstate is not liable for the use or misuse of the site's information. The information displayed on MirrorRealEstate.com is for reference only.

Real Estate Broker
Apple Property Solutions, Great Barr
Brokerage
Apple Property Solutions, Great Barr
Top Tags
Freehold
Likes

0

Views

62

This website uses cookies to ensure you get the best experience. Learn more