Crosby Garrett, Kirkby Stephen

GBP 360000 For Sale

Property Details

Property Type

Residential Development

Description

Property Details: • Type: Residential Development • Tenure: N/A • Floor Area: N/A

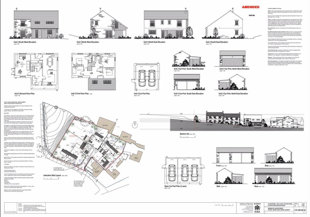
Key Features: • Development Opportunity • Planning Permission for demolition and new build • 5 Local Occupancy Dwellings • Planning reference E/02/7A • Village Location close to Appleby and Kirkby Stephen • Yorkshire Dales National Park

Location: • Nearest Station: Kirkby Stephen Station • Distance to Station: 2.8 miles

Agent Information: • Address: Unit 3 Mason Court Gillan Way Penrith 40 Business Park Penrith Cumbria CA11 9GR

Full Description: ** Wonderful development site for 5 Local Occupancy Dwellings in the heart of the Yorkshire Dales National Park **This is a great opportunity for those looking to build a small development of 5 homes in the village of Crosby Garrett, around 8 miles from the market town of Appleby with elevated open countryside views and an active village community.The Yorkshire Dales National Park Planning Authority have granted planning permission for 5 Local Occupancy dwellings. Four of these are 4 bedroomed properties with one being a 3 Bedroom dwelling. The properties are to be roofed in natural blue/grey slate, with the walls to be finished in local natural stone. The properties will boast views over the rolling hills towards the Yorkshire Dales National Park.There is a Local Occupancy restriction imposed on the development, further details are available on the Yorkshire Dales planning portal using reference E02/07A. The planning conditions have been discharged so this planning permission will not expire.Crosby Garrett is a hamlet and civil parish in the Eden District of Cumbria, England. It was formerly in the county of Westmorland and sits overlooking the stunning Lune Valley with beautiful views all around. ** Viewing Strictly by appointment only **Further Details - Prior to completion the vendor will remove two of the modern agricultural buildings to the Eastern side of the site, the remainder of the buildings will be sold as seen.There is a Local Occupancy restriction imposed on the development, further details are available on the Yorkshire Dales planning portal using reference E02/07AThe image provided is a rough indication of the plot available and as such cannot be relied upon as a full true likeness of the land for saleLocation - Crosby Garrett is a hamlet and civil parish in the Eden District of Cumbria, England. It was formerly in the county of Westmorland and sits overlooking the stunning Lune Valley with beautiful views all around. The Settle to Carlisle Railway goes through the boundary of the village, across the stunning Crosby Garrett viaduct, unfortunately the station it once had, succumbed under railway cuts in 1952. It is equidistant between Kendal and Penrith both being about 22 miles by car. Independent shops and numerous Inns, Cafes and Restaurants in the nearby town of Kirkby Stephen which is only 3.9 miles away.Services - A metered Mains Water supply is on site, and we understand that there is mains electricity and drainage on the roadside.Planning Permission - The site has Yorkshire Dales National Park Authority Application number E/02/7A . The planning conditions have been discharged so this planning permission will not expire.Disclaimer - These particulars, whilst believed to be accurate are set out as a general guideline and do not constitute any part of an offer or contract. Intending Purchasers should not rely on them as statements of representation of fact, but must satisfy themselves by inspection or otherwise as to their accuracy. The services, systems, and appliances shown may not have been tested and has no guarantee as to their operability or efficiency can be given. All floor plans are created as a guide to the lay out of the property and should not be considered as a true depiction of any property and constitutes no part of a legal contract.BrochuresCrosby Garrett, Kirkby Stephen

Location

Address

Crosby Garrett, Kirkby Stephen

City

Kirkby Stephen

Features and Finishes

Development Opportunity, Planning Permission for demolition and new build, 5 Local Occupancy Dwellings, Planning reference E/02/7A, Village Location close to Appleby and Kirkby Stephen, Yorkshire Dales National Park

Legal Notice

Our comprehensive database is populated by our meticulous research and analysis of public data. MirrorRealEstate strives for accuracy and we make every effort to verify the information. However, MirrorRealEstate is not liable for the use or misuse of the site's information. The information displayed on MirrorRealEstate.com is for reference only.

Real Estate Broker
David Britton Estates, Penrith
Brokerage
David Britton Estates, Penrith
Top Tags
Likes

0

Views

111

This website uses cookies to ensure you get the best experience. Learn more