Cross Keys Inn, Lyes Green, Corsley, Warminster, BA12
Property Details
Plot
Description
Property Details: • Type: Plot • Tenure: N/A • Floor Area: N/A
Key Features: • Superb Redevelopment Opportunity • Set in 0.38 acres • Former rural public house • Scope for a variety of potential uses • Village location
Location: • Nearest Station: N/A • Distance to Station: N/A
Agent Information: • Address: 6 The Bridge, Frome, BA11 1AR
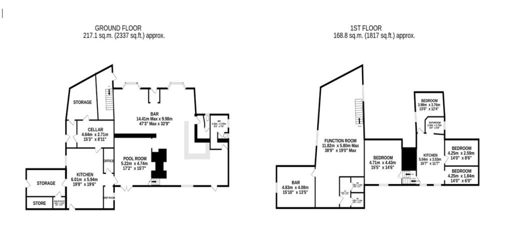
Full Description: Description - Cross Keys Inn offers a superb redevelopment opportunity to acquire a rural public house with huge scope for a variety of potential uses, subject to necessary consents. Last ran as a community pub with a focus on wet trade.The principal internal accommodation comprises of two bar areas, games room (with access to owners accommodation), customer WCs commercial kitchen with beer cellar and associated stores.On the first floor there is a four bedroom managers/owners flat accessed via the pub area but could be separated out by providing access via the rear through the games room.There is a separately accessed function room (skittle alley) at first floor level with its own bar and toilets. Offering scope for further living or letting accommodation.The property is in need of improvement and offers scope for continued pub or restaurant use or redevelopment to alternative commercial or residential uses. Subject to necessary consents.Externally, there is parking to the immediate front and a tarmac car park to the side. Formal raised lawn gardens to the rear and side.Site area extends to 0.38 acres.Planning - Interested parties must satisfy themselves regarding previous or future planning matters. Not listed.Location - Situated at Lye’s Green, Corsley a small rural village between Frome and Warminster. Nearby local road network off the A362 leading to the A36 providing access to the A303 to the south and Bath to the north.What3Words Location:///escorting.spite.stoppageBusiness Rates - A search on the Valuation Office Agency website reveals this unit has a Rateable Value of £4,000 (2023 List). This is not the rates payable. Parties may benefit from relief from business rates and should make their own enquiries of the local billing authority.Services - This property is on mains electricity and water, with private drainage and LPG heating.Viewings - By appointment only via Cooper & Tanner.VAT - We are advised that the property is elected for VAT at the standard rate.EPC Rating - C/68Disclaimer - Please note that the dimensions are approximate and to be used as a guide only.Overage - The Property is sold subject to an existing overage clause. Full details are available from the selling agent.Development-PropertyBrochuresBrochure 1Energy Performance CertificatesEPC 1
Location
Address
Cross Keys Inn, Lyes Green, Corsley, Warminster, BA12
City
Warminster
Features and Finishes
Superb Redevelopment Opportunity, Set in 0.38 acres, Former rural public house, Scope for a variety of potential uses, Village location
Legal Notice
Our comprehensive database is populated by our meticulous research and analysis of public data. MirrorRealEstate strives for accuracy and we make every effort to verify the information. However, MirrorRealEstate is not liable for the use or misuse of the site's information. The information displayed on MirrorRealEstate.com is for reference only.