Daisy Hill Hall, Bradford BD9
Property Details
7
3
Detached
Description
Property Details: • Type: Detached • Tenure: Freehold • Floor Area: N/A
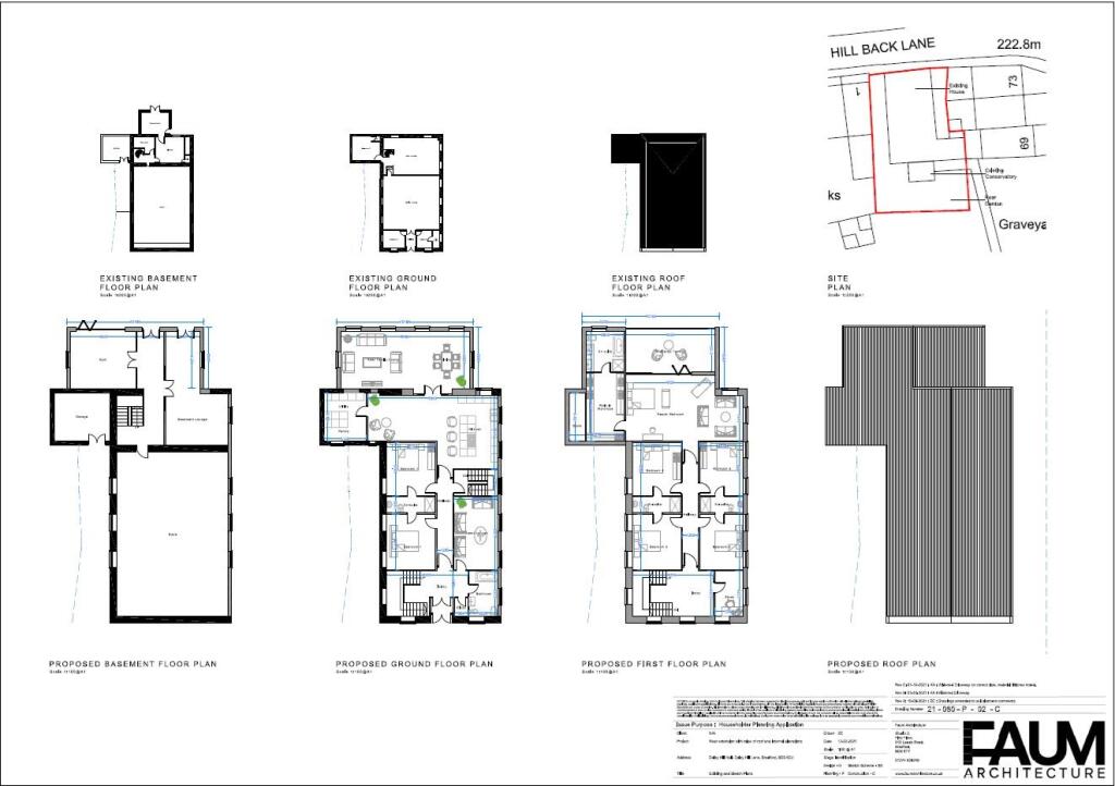
Key Features: • FOR SALE BY SHARPES, TRADITIONAL AUCTION - 7TH AUGUST 2025 • FANTASTIC DEVELOPMENT OPPURTUNITY • POPULAR LOCATION • FULL PLANNING FOR A SEVEN BEDROOM DETACHED HOME • FREEHOLD • CALL TO BOOK A VIEWING
Location: • Nearest Station: N/A • Distance to Station: N/A
Agent Information: • Address: 4 Upper Piccadilly, Bradford, BD1 3PQ
Full Description: FOR SALE BY SHARPES AUCTIONS, TRADITIONAL ONLINE AUCTION TO BE HELD ON THURSDAY 7TH AUGUST 2025 AT 12PM. ATTENTION INVESTORS/BUILDERS. EXCELLENT INVESTMENT OPPORTUNITY. this exceptional property presents a unique opportunity for those with a vision to create their dream home. With full planning permission already in place for a spacious seven-bedroom detached residence, this is a rare find for aspiring homeowners and builders alike.The proposed design includes a fantastic master suite, ensuring a luxurious retreat within the home. The generous layout allows for ample living space, perfect for families or those who enjoy entertaining. The location itself is highly desirable, with local amenities and transport links just a stone's throw away.Don’t miss out on this remarkable opportunity to turn your dream into reality.PLANNING APPLICATION NUMBER 21/03247/HOUPLANNING APPLICATION NUMBER 21/05666/HOUEPC- ETenure- FreeholdCouncil Tax-TBCDescription - This exceptional development presents a unique opportunity for those with a vision to create their dream home. With full planning permission already in place for a spacious seven-bedroom detached residence, this is a rare find for aspiring homeowners and builders alike.The proposed design includes a fantastic master suite, ensuring a luxurious retreat within the home. The generous layout allows for ample living space, perfect for families or those who enjoy entertaining. The location itself is highly desirable, with local amenities and transport links just a stone's throw away.Don’t miss out on this remarkable opportunity to turn your dream into reality.Solicitors - TBCBrochure Prepared - 07/05/2025BrochuresDaisy Hill Back Lane.pdfBrochure
Location
Address
Daisy Hill Hall, Bradford BD9
City
Bradford
Features and Finishes
FOR SALE BY SHARPES, TRADITIONAL AUCTION - 7TH AUGUST 2025, FANTASTIC DEVELOPMENT OPPURTUNITY, POPULAR LOCATION, FULL PLANNING FOR A SEVEN BEDROOM DETACHED HOME, FREEHOLD, CALL TO BOOK A VIEWING
Legal Notice
Our comprehensive database is populated by our meticulous research and analysis of public data. MirrorRealEstate strives for accuracy and we make every effort to verify the information. However, MirrorRealEstate is not liable for the use or misuse of the site's information. The information displayed on MirrorRealEstate.com is for reference only.