Dalesford, Haslingden, Rossendale
Property Details
Land
Description
Property Details: • Type: Land • Tenure: N/A • Floor Area: N/A
Key Features: • Dalesford, Haslingden, Rossendale • Plot with Full Planning Permission • Approved Planning For 5 Bed Detached Family Home • Excellent Accommodation Designed Over 3 Floors • Planning Extant With Piling Already In Situ • Conveniently Located Close To Local Amenities • Great Transport Links / Schools / Shopping All Nearby • VIEWING AVAILABLE BY APPOINTMENT ONLY
Location: • Nearest Station: Accrington Station • Distance to Station: 4.3 miles
Agent Information: • Address: 1a-1b Bank Street Rawtenstall Rossendale BB4 6QS
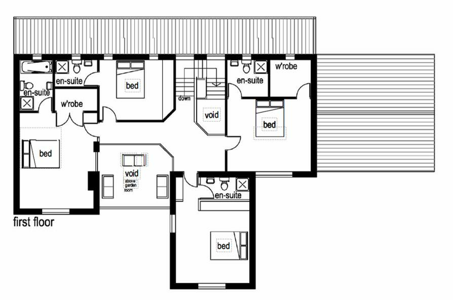
Full Description: *** NEW *** - EXCELLENT OPPORTUNITY TO PURCHASE A PLOT WITH FULL PLANNING IN PLACE & PILING ALREADY COMPLETE - The Proposed Dwelling Amounts To Just Over 4,500sqft & Comprises 5 Bedroom, Each With En-Suite Facilities, Plus Multiple Reception Spaces Too. Conveniently Position, Off the Main Road, All Local Amenities Nearby - VIEWING AVAILABLE BY APPOINTMENT THROUGHOUR RAWTENSTALL OFFICE - Contact Us To Arrange Your ViewingDalesford, Haslingden, Rossendale is a plot of land with planning permission in place, for one dwelling amounting to just over 4,500sqft. Designed as living accommodation which is well arranged over 3 floors, the proposed property is spacious and well-specified for modern family living. Upon the plot itself, the present owner has ensure the planning permission is extant, with piling for approved dwelling already in place. This is an excellent opportunity to purchase a plot with full planning in peat design and spec and for which significant initial progress has also been made. Viewing of the site is available - contact our Rawtenstall office to view.Internally, the approved property briefly comprises:Ground Floor - Entrance, Hallway, open plan Kitchen / Dining / Sitting Room, Garden Room, Lounge, 2nd Lounge.Lower Ground Floor - Lower Landing, Guest Bedroom with En-Suite Shower Room, Games Room, Utility Room, Bathroom /Sauna, Plant RoomFirst Floor - Gallery Landing off to Master Bedroom with Walk-I Wardrobe & En-Suite Bathroom, Bedrooms 2-4 all with their own En-Suite Shower Rooms.Situated just off the main road, but within easy reach of local amenities in Haslingden and Rawtenstall centres, the plot offers great connectivity to excellent transport links too. Popular local schools, supermarket shopping, healthcare and sport & leisure facilities are all easily reached, with a superb range of further amenities available throughout Rossendale as a whole.Agents Notes - Tenure: FreeholdStamp Duty: 0% up to £250,000, 5% of the amount between £250,001 & £925,000, 10% of the amount between £925,001 & £1,500,000, 12% of the remaining amount above £1,500,000. For some purchases, an additional 3% surcharge may be payable on properties with a sale price of £40,000 and over. Please call us for any clarification on the new Stamp Duty system or to find out what this means for your purchase.Disclaimer - Unless stated otherwise, these details may be in a draft format subject to approval by the property's vendors. Your attention is drawn to the fact that we have been unable to confirm whether certain items included with this property are in full working order. Any prospective purchaser must satisfy themselves as to the condition of any particular item and no employee of Farrow & Farrow has the authority to make any guarantees in any regard. The dimensions stated have been measured electronically and as such may have a margin of error, nor should they be relied upon for the purchase or placement of furnishings, floor coverings etc. Details provided within these property particulars are subject to potential errors, but have been approved by the vendor(s) and in any event, errors and omissions are excepted. These property details do not in any way, constitute any part of an offer or contract, nor should they be relied upon solely or as a statement of fact. In the event of any structural changes or developments to the property, any prospective purchaser should satisfy themselves that all appropriate approvals from Planning, Building Control etc, have been obtained and complied with.BrochuresDalesford, Haslingden, RossendaleBrochure
Location
Address
Dalesford, Haslingden, Rossendale
City
Rossendale
Features and Finishes
Dalesford, Haslingden, Rossendale, Plot with Full Planning Permission, Approved Planning For 5 Bed Detached Family Home, Excellent Accommodation Designed Over 3 Floors, Planning Extant With Piling Already In Situ, Conveniently Located Close To Local Amenities, Great Transport Links / Schools / Shopping All Nearby, VIEWING AVAILABLE BY APPOINTMENT ONLY
Legal Notice
Our comprehensive database is populated by our meticulous research and analysis of public data. MirrorRealEstate strives for accuracy and we make every effort to verify the information. However, MirrorRealEstate is not liable for the use or misuse of the site's information. The information displayed on MirrorRealEstate.com is for reference only.