Farmlands Close, Polegate
Property Details
3
1
Semi-Detached
Description
Property Details: • Type: Semi-Detached • Tenure: N/A • Floor Area: N/A
Key Features: • Extended Semi Detached House • Three Double Bedrooms • Sitting Room Area • Dining Area • Modern Kitchen • Bathroom/WC • Westerly Facing Lawned Rear Garden • Garage in Nearby Block • Views Towards South Downs • Close to Schools, Local Shops and Mainline Railway Station
Location: • Nearest Station: N/A • Distance to Station: N/A
Agent Information: • Address: 15 Cornfield Road Eastbourne BN21 4QD
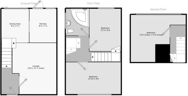
Full Description: *** GUIDE PRICE £300,000 - £310,000 *** Favourably located on the borders of Willingdon and Polegate, this extended semi detached house has three double bedrooms and enjoys far reaching views from the rear towards the South Downs. There is a sitting room area and adjoining dining room area where access is gained to the refitted modern kitchen. Further benefits include a first floor bathroom/wc and lawned gardens whilst a single garage is located in a nearby block. Willingdon School, local shops in the Triangle and Polegate High Street with its shops and mainline railway station are all within close walking distance.Entrance - Frosted double glazed door to-Entrance Hallway - Radiator. Wall mounted gas boiler. Frosted double glazed window.Sitting Room Area - 3.92 x 3.49 (12'10" x 11'5") - Radiator. Fireplace surround with mantel above. Carpet. Double glazed window to front aspect.Dining Room Area - 2.59m x 2.21m (8'6 x 7'3 ) - Radiator. Carpet. Sliding double glazed door to rear aspect.Modern Kitchen - 2.57m x 2.18m (8'5 x 7'2) - Range of units comprising of single drainer sink unit and mixer tap with part tiled walls and surrounding worksurfaces with cupboards and drawers under. Inset four ring gas hob with electric double oven under. Space for fridge and freezer. Space and plumbing for dishwasher and washing machine. Range of wall mounted units and extractor. Double glazed window and door to rear aspect.Stairs From Ground To First Floor Landing - Bedroom 1 - 4.53 x 2.59 (14'10" x 8'5") - Radiator. Carpet. Airing cupboard. Bulkhead storage cupboard. Double glazed window to front aspect.Bedroom 2 - 3.58 x 2.55 (11'8" x 8'4" ) - Radiator. Carpet. Store cupboard. Double glazed window to rear aspect.Bathroom/Wc - Panelled shower bath with shower screen and wall mounted shower. Pedestal wash hand basin with mixer tap. Low level WC. Radiator. Part panelled walls. Frosted double glazed window.Stairs From First To Second Floor Landing - Store/shelved cupboard.Bedroom 3 - 4.39m x 3.51m (14'5 x 11'6 ) - Radiator. Double glazed window to rear aspect with far reaching views towards the South Downs.Outside - Lawned gardens are arranged to the front and rear of the property, with a pleasant and secluded Westerly aspect to the rear where views towards the South Downs can be enjoyed.Parking - A single garage (left hand garage in block of three) is located close by.Epc = E - Council Tax Band = C - BrochuresFarmlands Close, PolegateBrochure
Location
Address
Farmlands Close, Polegate
City
Polegate
Features and Finishes
Extended Semi Detached House, Three Double Bedrooms, Sitting Room Area, Dining Area, Modern Kitchen, Bathroom/WC, Westerly Facing Lawned Rear Garden, Garage in Nearby Block, Views Towards South Downs, Close to Schools, Local Shops and Mainline Railway Station
Legal Notice
Our comprehensive database is populated by our meticulous research and analysis of public data. MirrorRealEstate strives for accuracy and we make every effort to verify the information. However, MirrorRealEstate is not liable for the use or misuse of the site's information. The information displayed on MirrorRealEstate.com is for reference only.