Foxlydiate Lane, Redditch B97

GBP 325000 For Sale

Property Details

Bedrooms

4

Bathrooms

3

Property Type

Plot

Description

Property Details: • Type: Plot • Tenure: N/A • Floor Area: N/A

Key Features:

Location: • Nearest Station: N/A • Distance to Station: N/A

Agent Information: • Address: Mason House, Evesham Road, Headless Cross, Redditch, B97 5ES

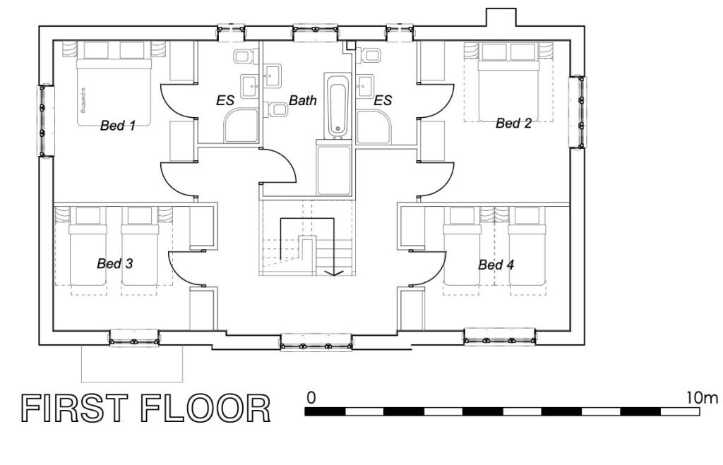
Full Description: A rare opportunity to acquire a building plot with full detailed planning in the sought after area of Webheath.The good size plot offers planning permission for a detached two storey, four bedroom house with internal accommodation of approximately 2080 sqft with additional detached double garage.Internally the proposed design will boast entrance hallway, kitchen/dining area, family room, reception room, utility room and cloakroom/WC to the ground floor, with landing/stairs, four bedrooms and three bathrooms to the first floor. It is understood that together with full detailed planning permission from Bromsgrove Council all other searches and surveys have been completed and can be provided, so the development can commence immediately. All enquiries to be made to the selling agent.BrochuresFoxlydiate Lane, Redditch B97

Location

Address

Foxlydiate Lane, Redditch B97

City

Foxlydiate Lane

Legal Notice

Our comprehensive database is populated by our meticulous research and analysis of public data. MirrorRealEstate strives for accuracy and we make every effort to verify the information. However, MirrorRealEstate is not liable for the use or misuse of the site's information. The information displayed on MirrorRealEstate.com is for reference only.

Real Estate Broker
Hunters, Redditch
Brokerage
Hunters, Redditch
Top Tags
Likes

0

Views

29

This website uses cookies to ensure you get the best experience. Learn more