Gisburn Road, Blacko, Nelson, Lancashire

GBP 765000 For Sale

Property Details

Bedrooms

3

Bathrooms

2

Property Type

Semi-Detached

Description

Property Details: • Type: Semi-Detached • Tenure: Freehold • Floor Area: N/A

Key Features: • Grade II listed character property. • Three double bedrooms & three reception rooms. • Original features throughout. • Sat in 5 Acres (OTA). • Yorkshire barn with planning permission for a four bedroomed property. • Separate games room & Utility/Workshop. • Panoramic views over open countryside.

Location: • Nearest Station: N/A • Distance to Station: N/A

Agent Information: • Address: 5 Church Street, Clitheroe, BB7 2DD

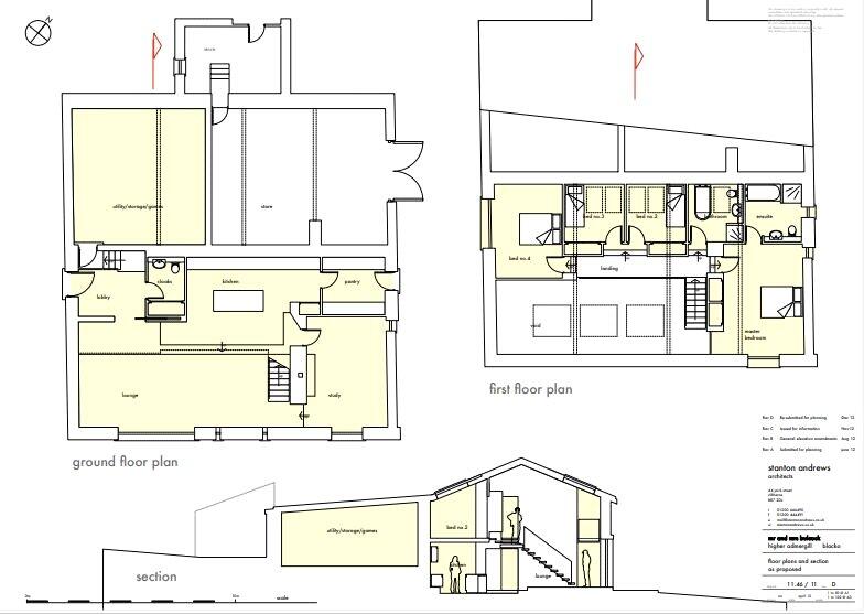
Full Description: This stunning Grade II listed property was fully renovated to exacting standards in 2009 and offers an array of original features throughout including beamed ceilings, exposed stone walls and an original fireplace. Internally the property offers three generous bedrooms and three reception rooms and externally the property is sat in approximately 5 acres and boasts spectacular views over open countryside. There is large barn which has planning permission for a four bedroomed property, a games room and a utility/workshop.Situated in a stunning rural location, the property is only a short drive to the Town of Barrowford where a host of local amenities can be found including, local shops, schools, supermarkets and excellent pubs and restaurants. The accommodation briefly comprises of an entrance hallway incorporating the staircase to the first floor. To the right of the entrance the spacious formal dining room can be found which spans from the front to the rear and boasts a beamed ceiling. The main living room also offers a beamed ceiling as well as an original fireplace with multi-fuel stove. To the rear of the living room under the staircase is also a downstairs W.C. Continuing through from the living room the kitchen can be found comprising of fully-fitted units with integrated appliances and corian worktops. The kitchen is also open to a dining area with picture window, mullion original windows and an external door to the fabulous side patio. To the first floor the vaulted, master bedroom spans from the front to the rear and benefits from an en-suite shower room. There are a further two double bedrooms also with vaulted ceilings. There is also a three piece family bathroom which is party-tiled with original beams and a mullion window. Externally the property sits within approximately 5 acres comprising of garden areas to the rear, front and side with a choice of patio areas ideal for entertaining outdoors. There are also three paddocks to the front, side and rear. A detached barn, currently incorporating a large games room, utility/workshop and storage, has planning for a four bedroomed property.BrochuresParticulars

Location

Address

Gisburn Road, Blacko, Nelson, Lancashire

City

Blackrod

Features and Finishes

Grade II listed character property., Three double bedrooms & three reception rooms., Original features throughout., Sat in 5 Acres (OTA)., Yorkshire barn with planning permission for a four bedroomed property., Separate games room & Utility/Workshop., Panoramic views over open countryside.

Legal Notice

Our comprehensive database is populated by our meticulous research and analysis of public data. MirrorRealEstate strives for accuracy and we make every effort to verify the information. However, MirrorRealEstate is not liable for the use or misuse of the site's information. The information displayed on MirrorRealEstate.com is for reference only.

Real Estate Broker
Armitstead Barnett, Clitheroe
Brokerage
Armitstead Barnett, Clitheroe
Top Tags
sat in 5 Acres
Likes

0

Views

31

This website uses cookies to ensure you get the best experience. Learn more