Glen Road, Lower Parkstone, Poole, BH14

GBP 585000 For Sale

Property Details

Bedrooms

3

Bathrooms

1

Property Type

Chalet

Description

Property Details: • Type: Chalet • Tenure: N/A • Floor Area: N/A

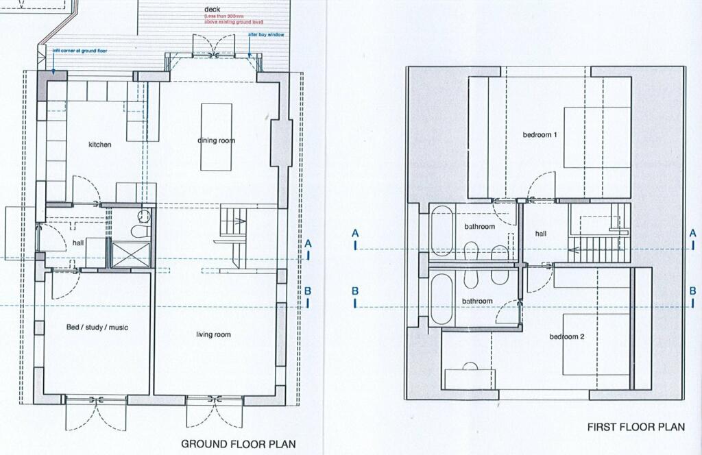
Key Features: • Open plan lounge/dining room • Harbour glimpses • Planning permission to redesign and extend • Landscaped mature plot • Scope to personalize • Off road parking for 2 cars • 3 double bedroom • Vendor suited

Location: • Nearest Station: N/A • Distance to Station: N/A

Agent Information: • Address: 3a Springfield Road Parkstone Poole BH14 0LG

Full Description: Glen Road is one of those best kept secrets in the area, a tucked away Cul-de-Sac location and yet walking distance to all local amenities. Offered for sale is The Squirrels, a charming and bright three double bedroom chalet positioned on a beautifully landscaped plot.The present layout offers a spacious open plan lounge/dining room with large picture windows allowing light to flood in. The country cottage style kitchen with a handy breakfast bar, provides ample storage with access and views to the rear garden. Also on this level is a double bedroom/reception room with patio doors for direct garden access. The first floor has two double bedrooms both with storage and the principal enjoying far reaching views of the Purbeck Hills. These are both serviced by the family bathroom.This is a garden that has been planted for the individual seasons. Gently tiered with various seating areas to enjoy the sun throughout the day. There is also a glass potting shed and summer chalet. The front garden, again thoughtfully landscaped, and has off road parking for 2 cars.Worthy of note: The planning permission creates a large open-plan kitchen/dining/day room with direct access to the west facing front garden, providing many options for outdoors dining and sunbathing.On a highly sought after no through road, walking distance to Ashley Cross village with the bars, restaurants and artisan coffee shops also giving access to the train station at Parkstone with direct trains to London Waterloo in approx 2 hours. Located in Courthill Infant School, Baden Powell & St Peters Junior School and Poole High School catchment areas. Also, worthy of note is the distance to Bournemouth Airport which is just 8 miles away and convenient bus links to the towns of Bournemouth and Poole. Council Tax Band D - £2147.75BrochuresBrochure 1

Location

Address

Glen Road, Lower Parkstone, Poole, BH14

City

Poole

Features and Finishes

Open plan lounge/dining room, Harbour glimpses, Planning permission to redesign and extend, Landscaped mature plot, Scope to personalize, Off road parking for 2 cars, 3 double bedroom, Vendor suited

Legal Notice

Our comprehensive database is populated by our meticulous research and analysis of public data. MirrorRealEstate strives for accuracy and we make every effort to verify the information. However, MirrorRealEstate is not liable for the use or misuse of the site's information. The information displayed on MirrorRealEstate.com is for reference only.

Real Estate Broker
Philippa Sole, Poole
Brokerage
Philippa Sole, Poole
Top Tags
Harbour glimpses Chalet N/A Floor Area: N/A
Likes

0

Views

19

This website uses cookies to ensure you get the best experience. Learn more