Green Lane, South Chailey

GBP 295000 For Sale

Property Details

Property Type

Land

Description

Property Details: • Type: Land • Tenure: N/A • Floor Area: N/A

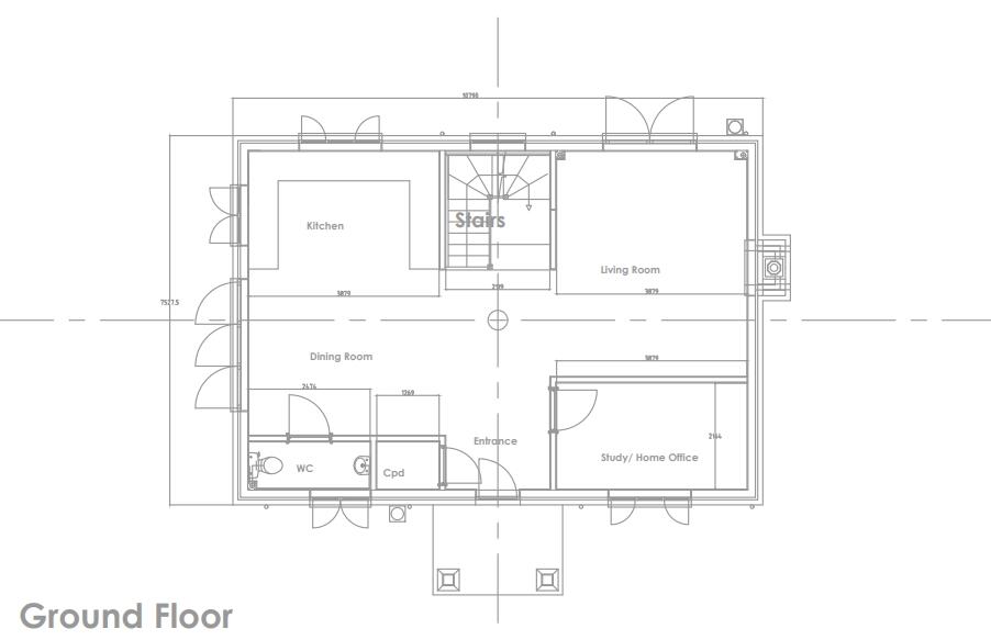
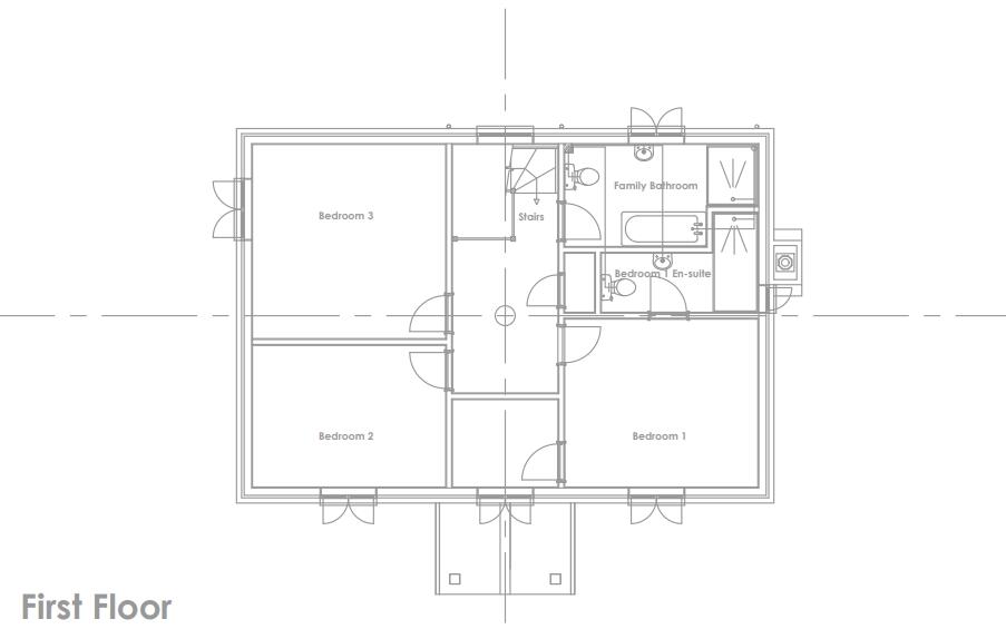
Key Features: • Self build plot • Single dwelling approx. 1011 sqft • Planning approved • Parking for 2 cars • Convenient semi-rural location • Detached 3 bedroom

Location: • Nearest Station: Plumpton Station • Distance to Station: 2.3 miles

Agent Information: • Address: 67-69 The Broadway, Haywards Heath, RH16 3AS

Full Description: A self-build plot with planning consent for a single three-bedroom detached dwelling with parking for two cars located in a semi-rural position on the fringes of South Chailey.Please contact the agent to arrange a viewing.SITUATIONPlanning permission has been granted by Lewes District Council (Planning Ref: LW/22/0089) with all matters reserved for the erection of a self-build, single threebedroom two-storey dwelling measuring approximately 94 sq. mt (1,011 sq.ft). The dwelling will have garden spaces to the rear, front and side in which bin and cycle storage can be situated. Set back from the road to compliment existing building lines around the village. The property will be accessed into an individual driveway from Green Lane and will have two parking spaces.ServicesMain water connected.Electricity are close by.No mains gas in in the area.Private drainage (not currently connected).BrochuresParticulars

Location

Address

Green Lane, South Chailey

City

Chailey

Features and Finishes

Self build plot, Single dwelling approx. 1011 sqft, Planning approved, Parking for 2 cars, Convenient semi-rural location, Detached 3 bedroom

Legal Notice

Our comprehensive database is populated by our meticulous research and analysis of public data. MirrorRealEstate strives for accuracy and we make every effort to verify the information. However, MirrorRealEstate is not liable for the use or misuse of the site's information. The information displayed on MirrorRealEstate.com is for reference only.

Real Estate Broker
Batcheller Monkhouse, Haywards Heath
Brokerage
Batcheller Monkhouse, Haywards Heath
Top Tags
self build plot planning approved parking for 2 cars detached 3 bedroom
Likes

0

Views

81

This website uses cookies to ensure you get the best experience. Learn more