Halifax Road, Bradford
Property Details
Land
Description
Property Details: • Type: Land • Tenure: N/A • Floor Area: N/A
Key Features: • Sold via ‘Secure Sale’ • Immediate ‘exchange of contracts’ available • Full planning permission granted
Location: • Nearest Station: Low Moor Station • Distance to Station: 1.6 miles
Agent Information: • Address: Office 1, 13 Horbury Road, Horbury Road, Ossett, WF5 0BN
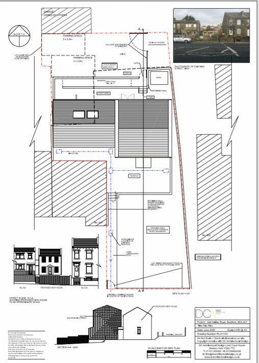
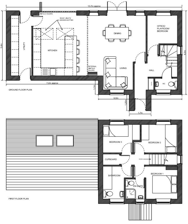
Full Description: Being sold via Secure Sale online bidding. Terms & Conditions apply. Starting Bid £70,000This property will be legally prepared enabling any interested buyer to secure the property immediately once their bid/offer has been accepted. Ultimately a transparent process which provides speed, security and certainty for all parties.Residential land for sale with approved planning permission for one 4 bedroom detached house as per plans shown. Situated in a popular residential location on the site of 524 Halifax Road.The final build will be an impressive 4 bed detached residence with spacious open plan living on the ground floor opening out to the garden and a study/play room or fourth bedroom. On the first floor are three good sized bedrooms with en-suite to the master and a family bathroom.Auctioneers Additional CommentsPattinson Auction are working in Partnership with the marketing agent on this online auction sale and are referred to below as 'The Auctioneer'.This auction lot is being sold either under conditional (Modern) or unconditional (Traditional) auction terms and overseen by the auctioneer in partnership with the marketing agent.The property is available to be viewed strictly by appointment only via the Marketing Agent or The Auctioneer. Bids can be made via the Marketing Agents or via The Auctioneers website.Please be aware that any enquiry, bid or viewing of the subject property will require your details being shared between both any marketing agent and The Auctioneer in order that all matters can be dealt with effectively.The property is being sold via a transparent online auction. In order to submit a bid upon any property being marketed by The Auctioneer, all bidders/buyers will be required to adhere to a verification of identity process in accordance with Anti Money Laundering procedures. Bids can be submitted at any time and from anywhere. Our verification process is in place to ensure that AML procedure are carried out in accordance with the law.A Legal Pack associated with this particular property is available to view upon request and contains details relevant to the legal documentation enabling all interested parties to make an informed decision prior to bidding. The Legal Pack will also outline the buyers' obligations and sellers' commitments. It is strongly advised that you seek the counsel of a solicitor prior to proceeding with any property and/or Land Title purchase.Auctioneers Additional CommentsIn order to secure the property and ensure commitment from the seller, upon exchange of contracts the successful bidder will be expected to pay a non-refundable deposit equivalent to 5% of the purchase price of the property. The deposit will be a contribution to the purchase price. A non-refundable reservation fee of up to 6% inc VAT (subject to a minimum of 6,000 inc VAT) is also required to be paid upon agreement of sale. The Reservation Fee is in addition to the agreed purchase price and consideration should be made by the purchaser in relation to any Stamp Duty Land Tax liability associated with overall purchase costs.Both the Marketing Agent and The Auctioneer may believe necessary or beneficial to the customer to pass their details to third party service suppliers, from which a referral fee may be obtained. There is no requirement or indeed obligation to use these recommended suppliers or services.Tenure: FreeholdBrochuresBrochure
Location
Address
Halifax Road, Bradford
City
Denholme
Features and Finishes
Sold via ‘Secure Sale’, Immediate ‘exchange of contracts’ available, Full planning permission granted
Legal Notice
Our comprehensive database is populated by our meticulous research and analysis of public data. MirrorRealEstate strives for accuracy and we make every effort to verify the information. However, MirrorRealEstate is not liable for the use or misuse of the site's information. The information displayed on MirrorRealEstate.com is for reference only.