Halifax Road, Denholme, Bradford, BD13
Property Details
6
2
Character Property
Description
Property Details: • Type: Character Property • Tenure: Freehold • Floor Area: N/A
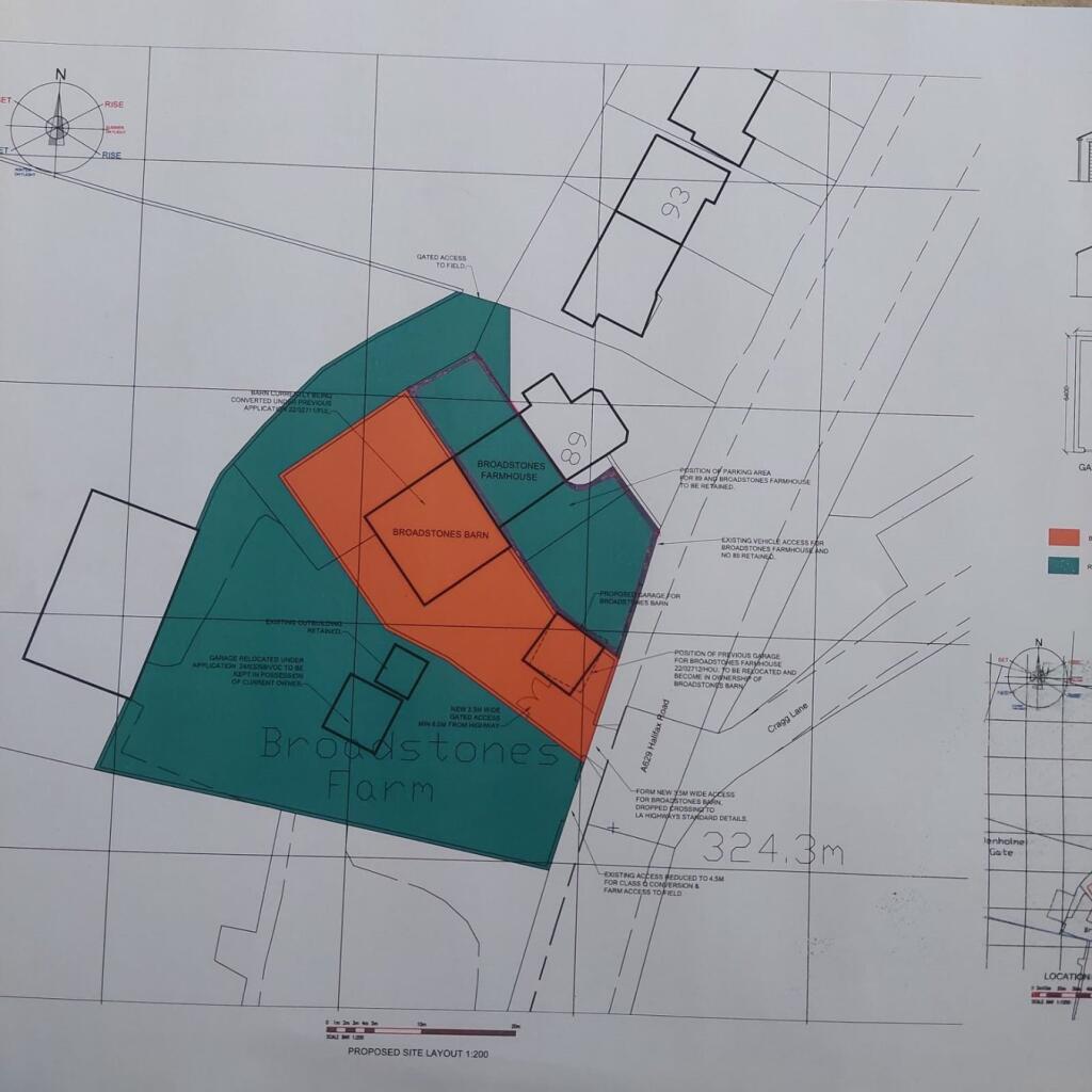
Key Features: • Fantastic Development Opportunity • Stone Built farm House & Adjoining Barn With Planning Passed (Planning app. no. 27/02711/FUL) • EPC Rating Is D • Stunning Character Features • Popular Location Of Denholme Gate • In Need Of Modernisation/NO CHAIN
Location: • Nearest Station: N/A • Distance to Station: N/A
Agent Information: • Address: 28 Cavendish Street, Keighley, BD21 3RG
Full Description: A fantastic development opportunity comprising of a stone built farm house with adjoining barn situated in the popular and convenient location of Denholme Gate with fabulous rural outlook and excellent access to local towns and cities including Halifax, Bradford, Bingley and Keighley.The farm house itself is in need of modernisation however does retain stunning character features, and the spacious accommodation comprises of an entrance porch leading into the dining room which has original ceiling beams and stunning fireplace opens out into the lounge (also enjoying the fabulous character features), there is a rear hallway, study, kitchen with a range of base and wall mounted units, integrated electric hob and oven. To the first floor there are three good size bedrooms, and the bathroom which has a bath, WC, wash hand basin, shower tray. The property has gas fired central heating, mains gas, mains electric and mains drainage.The adjoining barn previously operated as a successful farm shop and retail premises, and has planning permission passed to be converted into a 3 bedroom dwelling with annex office & detached double garage -planning app. number 22/02711/FUL. Outside the barn and farm house is ample parking a stone built Mistal. The property has gas fired central heating, mains gas, mains electric and mains drainage. Ample Parking, offered for sale with no onward chain. EPC rating D.BrochuresBrochure 1Brochure 2
Location
Address
Halifax Road, Denholme, Bradford, BD13
City
None
Features and Finishes
Fantastic Development Opportunity, Stone Built farm House & Adjoining Barn With Planning Passed (Planning app. no. 27/02711/FUL), EPC Rating Is D, Stunning Character Features, Popular Location Of Denholme Gate, In Need Of Modernisation/NO CHAIN
Legal Notice
Our comprehensive database is populated by our meticulous research and analysis of public data. MirrorRealEstate strives for accuracy and we make every effort to verify the information. However, MirrorRealEstate is not liable for the use or misuse of the site's information. The information displayed on MirrorRealEstate.com is for reference only.