Land Adjoining Pierce Close, Pierce Close, Padiham, Burnley, Lancashire
Property Details
3,485 sq ft
Description
Property Details: • Type: 3,485 sq ft • Tenure: N/A • Floor Area: N/A
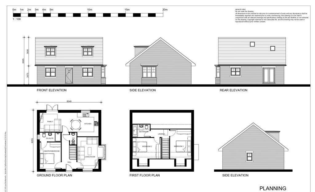
Key Features: • Planning permission recently granted for 3 bed detached dormer bungalow with garden and off road parking. • Popular residential location adjacent to the newly developed Maple Close estate. • Located close to Padiham town centre and its amenities. • Corner plot in elevated position.
Location: • Nearest Station: Hapton Station • Distance to Station: 1.5 miles
Agent Information: • Address: SUITE 125b Empire Business Centre 2 Empire way off Liverpool Road Burnley BB12 6HH
Full Description: An elevated residential building plot located at the entrance of Pierce Close. Planning permission was granted in June 2023 (Reference No. FUL/2022/0541) for the erection of a spacious, detached 3 bedroom dormer bungalow with a garden and driveway, providing parking for 2 vehicles. Internally, the accommodation is to comprise on the ground floor, a living room, kitchen / dining room, master bedroom with en-suite and a WC. The first floor will comprise a further 2 bedroom and bathroom.The plot adjoins a mix of detached and semi detached dwellings.
Location
Address
Land Adjoining Pierce Close, Pierce Close, Padiham, Burnley, Lancashire
City
Padiham
Features and Finishes
Planning permission recently granted for 3 bed detached dormer bungalow with garden and off road parking., Popular residential location adjacent to the newly developed Maple Close estate., Located close to Padiham town centre and its amenities., Corner plot in elevated position.
Legal Notice
Our comprehensive database is populated by our meticulous research and analysis of public data. MirrorRealEstate strives for accuracy and we make every effort to verify the information. However, MirrorRealEstate is not liable for the use or misuse of the site's information. The information displayed on MirrorRealEstate.com is for reference only.