Mackintosh Place, CARDIFF

GBP 300000 For Sale

Property Details

Bedrooms

4

Bathrooms

4

Property Type

Block of Apartments

Description

Property Details: • Type: Block of Apartments • Tenure: N/A • Floor Area: N/A

Key Features: • Development Opportunity • Four Flats • Profitable opportunity • Rare opportunity • Prime Location • Planning Granted

Location: • Nearest Station: N/A • Distance to Station: N/A

Agent Information: • Address: 102 Albany Road Cardiff CF24 3RT

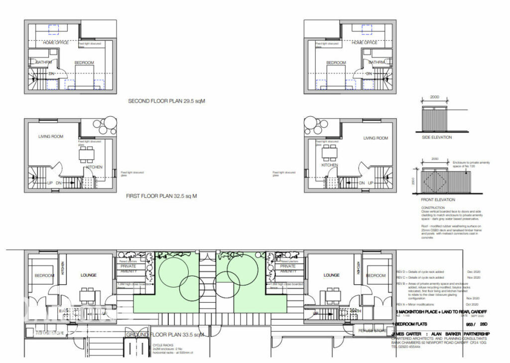
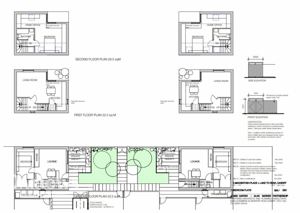
Full Description: A wonderful plot of land available to purchase with access walk way through the property with planning permission for four flats to the rear. To the rear of the property there is planning to erect 2 new buildings with 2 flats each (all services – including gas – are already available on site and have been supplied historically to the former Cardiff Rifle Club which occupied the entire site). There is currently access via the walk way of the property. Located on Mackintosh Place you are within walking distance to local shops and great cafe's and restaurants on City Road or Crwys Road.This property would make an ideal investment for those looking for a rare occurrence of a plot of land in the Roath area.Planning application reference 20/00822/MNRDisclaimerDarlows Estate Agents also offer a professional, ARLA accredited Lettings and Management Service. If you are considering renting your property in order to purchase, are looking at buy to let or would like a free review of your current portfolio then please call the Lettings Branch Manager on the number shown above.Darlows Estate Agents is the seller's agent for this property. Your conveyancer is legally responsible for ensuring any purchase agreement fully protects your position. We make detailed enquiries of the seller to ensure the information provided is as accurate as possible. Please inform us if you become aware of any information being inaccurate.BrochuresBrochure 1

Location

Address

Mackintosh Place, CARDIFF

City

Cardiff

Features and Finishes

Development Opportunity, Four Flats, Profitable opportunity, Rare opportunity, Prime Location, Planning Granted

Legal Notice

Our comprehensive database is populated by our meticulous research and analysis of public data. MirrorRealEstate strives for accuracy and we make every effort to verify the information. However, MirrorRealEstate is not liable for the use or misuse of the site's information. The information displayed on MirrorRealEstate.com is for reference only.

Real Estate Broker
Darlows, Albany Road
Brokerage
Darlows, Albany Road
Top Tags
Rare opportunity Prime Location
Likes

0

Views

68

This website uses cookies to ensure you get the best experience. Learn more