Mount Street, Derby, Derbyshire, DE1
Property Details
Land
Description
Property Details: • Type: Land • Tenure: N/A • Floor Area: N/A
Key Features: • Investment / Development Opportunity • Mixed Commercial and Residential Development • Modern Method of Auction - NOW LIVE • Full Planning Permission • 18 Studio Apartments + 2 One-bed Room Flats • 10 Parking Spaces / Car Park • Large Commercial / Retail Unit with Parking • Central Location • Close to town centre
Location: • Nearest Station: Derby Station • Distance to Station: 0.7 miles
Agent Information: • Address: Cavendish House Littlewood Drive, Cleckheaton, BD19 4TE
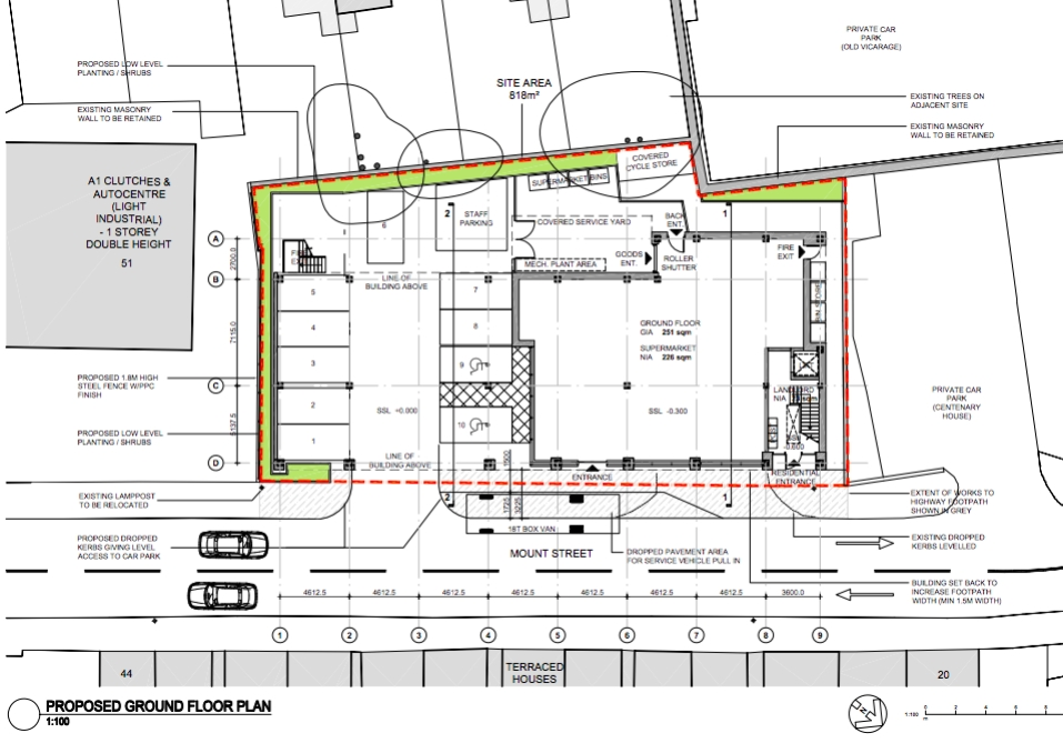
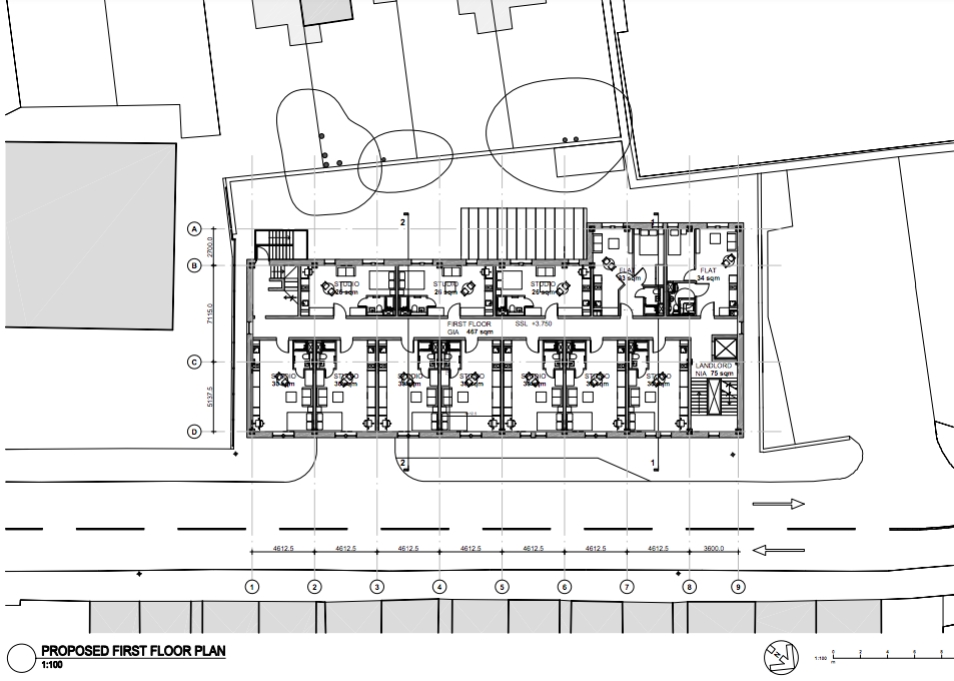
Full Description: ** ATTENTION DEVELOPERS / INVESTORS / BUILDERS ** AUCTION IS NOW LIVE ** A fantastic development opportunity in Derby's City Centre to be sold by Modern Method of Auction. The site, which is approximately 0.2 acres in total comprises the former plots for 45 and 47 Mount Street and an adjacent block of garages, which have all been demolished. There was FULL PLANNING CONSENT (REF: 03/14/00427) granted in 2016 for the construction of 3-Storey mixed residential and commercial unit with parking space for 10 cars. The retail unit is on the ground floor and the accommodation is on the 1st and 2nd floors.On the first floor there is permission for 2 one-bedroom flats and 10 studio apartments. On the second floor there will be a further 8 studio apartments.The commercial unit is 251m2 and has designated staff parking area and cycle store. 1-bedroom flats are around 34m2 each and the studio apartments are each approx 30m2 in size.The Gross Developmental Value (GDV) for the complete unit is estimated at around £2.4-2.5 million. The studio apartments will easily sell for £100-110k and the flats around £120-140k. The finished retail unit should fetch around £300-400k.The rental yields for this development are substantial. We would expect the retail unit to fetch £2500 PCM. The 1-bed flats would rent for £650 PCM and the studio apartments would be let out for £600 PCM.The combined annual rental income would come to around £175kThe previous planning application has now lapsed and the old plans have been resubmitted for approval earlier this year. The planning committee is due to give a formal decision in October 2024. This should be a formality given they had previously approved the plans and no changes have been made to the resubmitted proposals.The proposed plans are available online at the Derby Planning Portal (REF 24/00914/FUL).Mount Street is in a prime location given its close proximity to the city centre, University and transport links.Investors and developers you do not want to miss on this fabulous opportunity.Call 24/7 to request more details Visit iamsold website (link below) for a buyers pack Auctioneer Comments:This property is for sale by the Modern Method of Auction, meaning the buyer and seller are to Complete within 56 days (the "Reservation Period"). Interested parties personal data will be shared with the Auctioneer (iamsold).If considering buying with a mortgage, inspect and consider the property carefully with your lender before bidding.A Buyer Information Pack is provided. The buyer will pay £300.00 including VAT for this pack which you must view before bidding.The buyer signs a Reservation Agreement and makes payment of a non-refundable Reservation Fee of 4.50% of the purchase price including VAT, subject to a minimum of £6,600.00 including VAT. This is paid to reserve the property to the buyer during the Reservation Period and is paid in addition to the purchase price. This is considered within calculations for Stamp Duty Land Tax.Services may be recommended by the Agent or Auctioneer in which they will receive payment from the service provider if the service is taken. Payment varies but will be no more than £450.00. These services are optionalEnergy Performance CertificatesEPC 1
Location
Address
Mount Street, Derby, Derbyshire, DE1
City
Derby
Features and Finishes
Investment / Development Opportunity, Mixed Commercial and Residential Development, Modern Method of Auction - NOW LIVE, Full Planning Permission, 18 Studio Apartments + 2 One-bed Room Flats, 10 Parking Spaces / Car Park, Large Commercial / Retail Unit with Parking, Central Location, Close to town centre
Legal Notice
Our comprehensive database is populated by our meticulous research and analysis of public data. MirrorRealEstate strives for accuracy and we make every effort to verify the information. However, MirrorRealEstate is not liable for the use or misuse of the site's information. The information displayed on MirrorRealEstate.com is for reference only.