Plot 2, Land To North East Of 3, Old Aberdeen Road, Fordoun, AB30

GBP 75000 For Sale

Property Details

Property Type

Plot

Description

Property Details: • Type: Plot • Tenure: N/A • Floor Area: N/A

Key Features:

Location: • Nearest Station: Laurencekirk Station • Distance to Station: 3.4 miles

Agent Information: • Address: 74 High Street, Perth PH1 5TH

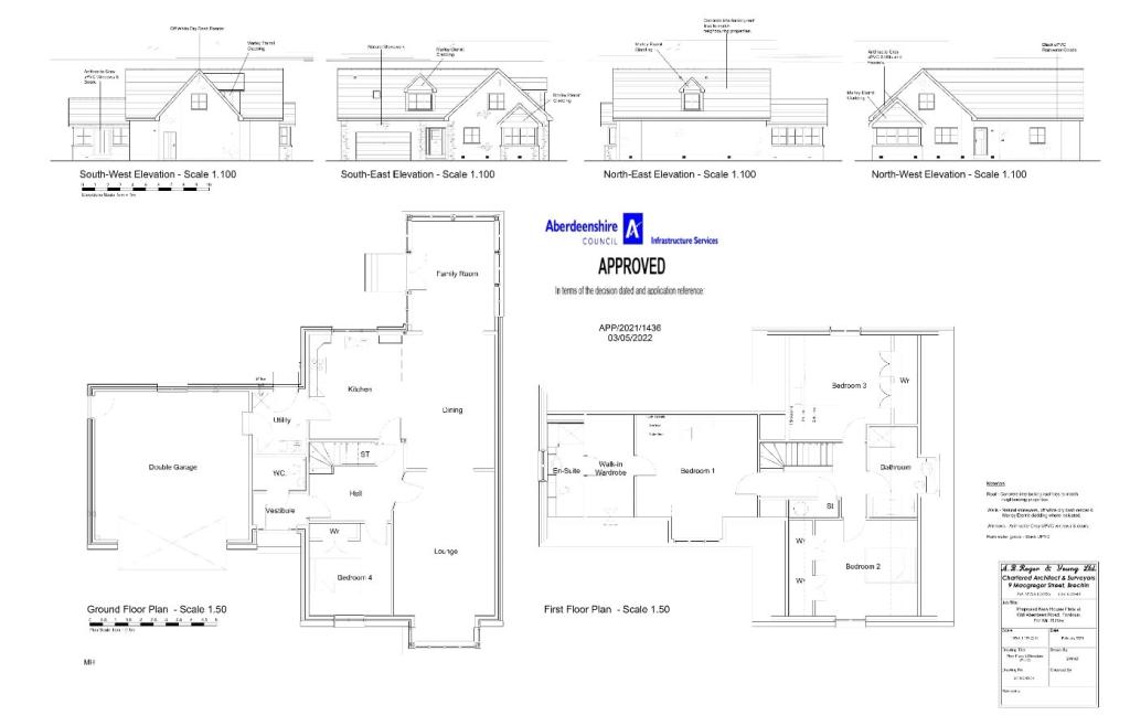
Full Description: Plot 1 North East of 3 Old Aberdeen Road presents an exciting opportunity to acquire a development site, offered for sale with Full Planning Permission for a 4 BED DETACHED TWO STOREY DWELLING. The total development site extends to approximately 1353sqm/0.35acres and is perfectly positioned on the outskirts of Fordoun village, with excellent transport links to Aberdeen in the North and Dundee and beyond to the South. The finished property will offer an exceptionally spacious and versatile home, showcasing the best of open-plan family living, with the benefit of a ground floor bedroom and WC, together with 3 double bedrooms, ensuite and family bathroom to the first floor. An integral double garage will create ample space for secure parking and storage, with additional parking on the driveway and a generous plot for the discerning buyer to landscape their preferred garden. Full details and all relevant planning documentation can be found on the Aberdeenshire Council website by using planning reference – APP/2021/1436.

Location

Address

Plot 2, Land To North East Of 3, Old Aberdeen Road, Fordoun, AB30

City

Fordoun

Legal Notice

Our comprehensive database is populated by our meticulous research and analysis of public data. MirrorRealEstate strives for accuracy and we make every effort to verify the information. However, MirrorRealEstate is not liable for the use or misuse of the site's information. The information displayed on MirrorRealEstate.com is for reference only.

Real Estate Broker
Aberdein Considine, Perth
Brokerage
Aberdein Considine, Perth
Top Tags
Aberdein Considine Perth
Likes

0

Views

49

This website uses cookies to ensure you get the best experience. Learn more