Plot 2, Reedley Road Burnley, BB10 2LU

GBP 95000 For Sale

Property Details

Property Type

Land

Description

Property Details: • Type: Land • Tenure: N/A • Floor Area: N/A

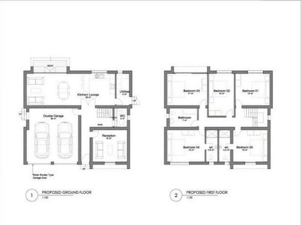
Key Features: • FOR SALE BY SHARPES, TRADITIONAL AUCTION - 5TH OF DECEMBER 2024 AT 12PM. • PLANNING FOR A FIVE BEDROOM DETACHED HOME • WE HAVE TWO PLOTS AVAILABLE • FANTASTIC LOCATION WITH A FLAT SITE • GREAT ACCESS FOR SERVICES • CALL FOR MORE INFORMATION

Location: • Nearest Station: Brierfield Station • Distance to Station: 0.4 miles

Agent Information: • Address: 4 Upper Piccadilly, Bradford, BD1 3PQ

Full Description: FOR SALE BY SHARPES AUCTIONS, TRADITIONAL ONLINE AUCTION TO BE HELD ON THURSDAY 5th OF DECEMBER 2024 AT 12PM. ATTENTION INVESTORS. EXCELLENT INVESTMENT OPPORTUNITY. We have for sale a plot of land on Reedley Road one of the areas premium addresses. The planning has been passed for a 5 bedroom detached property which we have been informed by our partner agent with have an end value of circa £500,000. The full details are available at the Pendle Borough Council Planning,Pendle Planning: 17/0040/FULReedley is an area located between Burnley and Brierfield being within easy reach of the motorway network, bus routes, local schools and shopping facilities.Full Description - We have for sale Plot 2 on this prestigious Reedley Road development. The planning has been passed for a 5 bedroom detached property. The full details are available at the Pendle Borough Council Planning, Reedley is an area located between Burnley and Brierfield being within easy reach of the motorway network, bus routes, local schools and shopping facilities.Solicitors - Pabla Solicitors Ref:- Colin BethellBrochuresPlot 2, Reedley Road Burnley, BB10 2LUBrochure

Location

Address

Plot 2, Reedley Road Burnley, BB10 2LU

City

Burnley

Features and Finishes

FOR SALE BY SHARPES, TRADITIONAL AUCTION - 5TH OF DECEMBER 2024 AT 12PM., PLANNING FOR A FIVE BEDROOM DETACHED HOME, WE HAVE TWO PLOTS AVAILABLE, FANTASTIC LOCATION WITH A FLAT SITE, GREAT ACCESS FOR SERVICES, CALL FOR MORE INFORMATION

Legal Notice

Our comprehensive database is populated by our meticulous research and analysis of public data. MirrorRealEstate strives for accuracy and we make every effort to verify the information. However, MirrorRealEstate is not liable for the use or misuse of the site's information. The information displayed on MirrorRealEstate.com is for reference only.

Real Estate Broker
Sharpes Auctions, Bradford
Brokerage
Sharpes Auctions, Bradford
Top Tags
Likes

0

Views

123

This website uses cookies to ensure you get the best experience. Learn more