Walshaw Business Centre, Talbot Street, Briercliffe, Burnley, Lancashire

GBP 500 For Rent

Property Details

Property Type

2,297-3,168 sq ft

Description

Property Details: • Type: 2,297-3,168 sq ft • Tenure: N/A • Floor Area: N/A

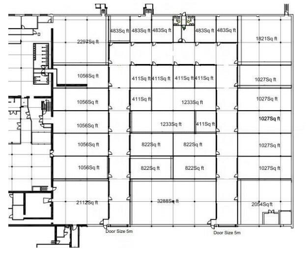
Key Features: • Substantial mill site divided into a number of light industrial units, each with electric roller shutter doors. • Units starting at 822 sq.ft available for immediate occupation. • Substantial yard area, with good loading facilities. • Flexible lease terms available. • VAT not applicable. • Additional fenced yard available starting from £350pcm.

Location: • Nearest Station: Brierfield Station • Distance to Station: 1.6 miles

Agent Information: • Address: SUITE 125b Empire Business Centre 2 Empire way off Liverpool Road Burnley BB12 6HH

Full Description: The property comprises a substantial mill consisting of a single storey Northlight former weaving shed of stone construction beneath a slated glazed Northlight roof.The Northlight section of the mill is refurbished and comprises a series of storage / light industrial units starting from 822 sq.ft. Units are accessed via a communal drive-in loading area and each have their own electric roller shutter doors.The remainder of the mill comprises a substantial three storey section of stone construction beneath a pitched slate roof, to the ground floor of this section are a series of units starting from 800 sq.ft., each benefiting from solid concrete flooring and three phase electricity. To the rear of this section is an office area accessed by a separate personnel door which could be offered with an adjoining industrial unit or as self contained office accommodation.To the front of the site is a large gated yard offering ample loading facilities and to the rear of the site is a large grassed area which could be developed to provide additional parking and loading facilities.

Location

Address

Walshaw Business Centre, Talbot Street, Briercliffe, Burnley, Lancashire

City

Burnley

Features and Finishes

Substantial mill site divided into a number of light industrial units, each with electric roller shutter doors., Units starting at 822 sq.ft available for immediate occupation., Substantial yard area, with good loading facilities., Flexible lease terms available., VAT not applicable., Additional fenced yard available starting from £350pcm.

Legal Notice

Our comprehensive database is populated by our meticulous research and analysis of public data. MirrorRealEstate strives for accuracy and we make every effort to verify the information. However, MirrorRealEstate is not liable for the use or misuse of the site's information. The information displayed on MirrorRealEstate.com is for reference only.

Real Estate Broker
Petty Commercial, Lancashire
Brokerage
Petty Commercial, Lancashire
Top Tags
297-3
Likes

0

Views

81

This website uses cookies to ensure you get the best experience. Learn more