阿尔伯特街,圣奥尔本斯,赫特福德郡,AL1 1RU

出售 GBP 575000

房产图片

15 张图片
房产详情
不适用
房产类型

其他信息
地块信息
不适用
停车信息
不适用
预估税费
不适用

描述

房产详情: • 类型:不适用 • 所有权:不适用 • 建筑面积:不适用

主要特点: • 吸引人的位置 • 位于市中心核心区域 • 理想的地理位置 • 推荐看房

位置: • 最近的车站:不适用 • 距离车站:不适用

代理信息: • 地址:Mercantile House Silverlink, Wallsend, NE28 9NY

完整描述: 通过安全的线上竞拍方式出售-仅限条款和条件

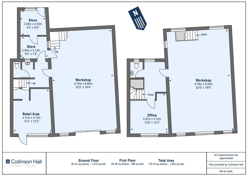
目前配置有工作坊、储藏室和办公区域,其宽敞的占地面积和布局非常适合恢复为住宅(需规划批准)。

在后方,有一个小型庭院,提供宝贵的户外空间,并具有明显的改进潜力。

对于寻求全面翻新和创意重新设计的项目的人来说,这处房产提供了一个难得的机会,可以在城市最受欢迎的中心位置打造定制住宅。圣奥尔本斯市火车站距离不到1英里,直达伦敦,行程仅需20多分钟。

请注意,我们尚未对该房产进行实地检查。位置:位于市中心一条迷人且富有特色的街道上。 住宿:虽然目前配置有工作坊、储藏室和办公区域,但其宽敞的占地面积和布局非常适合恢复为住宅(需规划批准)。后方的小型庭院提供宝贵的户外空间,具有明显的提升潜力。 评估价值:预计从2026年4月1日起,未来的评估价值为£19,250。数据来源:VOA EPCR评级:C,完整报告可应要求提供。 其他信息:如需更多信息,请直接联系我们的办公室,电话:,或通过电子邮件:。关于查看该房产,必须提前预约。 拍卖商附加评论:Pattinson拍卖行在下文中称为“拍卖官”。此拍卖标的物在受条件(现代)或无条件(传统)拍卖条款下由拍卖官监管出售。房产仅通过任何市场代理或拍卖官预约查看。请注意,任何查询、出价或看房都需要您的信息在任何市场代理和拍卖官之间共享,以便有效处理所有事务。房产通过透明的线上拍卖方式出售。要对任何由拍卖官市场推广的房产出价,所有竞标者和买家必须遵循反洗钱程序的身份验证流程。出价可以随时随地提交。我们的验证流程旨在确保遵守反洗钱法规。 拍卖官附加评论:广告价格通常被称为起拍价或指导价,并附有保留价。保留价对卖家和拍卖官保密,通常在指导价±10%的范围内。价格可能会变动。拍卖官有权在任何时间关闭拍卖,允许在拍卖结束前出售该房产(标的物)。与该房产相关的法律包可应要求查看,内容包括法律文件的详细信息,帮助所有感兴趣方在出价前做出明智决定。法律包还将说明买家的义务和卖家的承诺。强烈建议在进行任何房产和/或土地所有权购买前咨询律师。 拍卖官附加评论:为了确保房产安全并获得卖方的承诺,合同交换后,成功竞标者需支付不退还的定金,金额为购房总价的5%。定金将计入购房总价。还需支付最高6%的不可退还的预订费(含增值税),(最低费用可能高达7,200英镑含税),在达成销售协议时支付。预订费应计入总购买成本,购房者应考虑与整体购买相关的印花税土地税(SDLT)。市场代理和拍卖官可能认为有必要或有益将客户信息传递给第三方服务供应商,可能会获得介绍费。没有强制使用推荐供应商或服务的要求。

位置

地址
阿尔伯特街,圣奥尔本斯,赫特福德郡,AL1 1RU
城市
赫特福德郡

地图

特色与装修

吸引人的位置,位于市中心核心区域,理想的地理位置,推荐看房

房地产经纪人
Pattinsons,Pattinsons拍卖行-全国拍卖行

Pattinsons, Pattinsons Auction- National Auctioneer

房源操作
查看原始房源

分享这个房源
房源统计
0
收藏
13
浏览
法律声明

我们的综合数据库是通过对公共数据的仔细研究和分析而建立的。 MirrorRealEstate致力于确保信息的准确性,我们会尽一切努力验证信息。但是, MirrorRealEstate不对网站信息的使用或误用负责。MirrorRealEstate.com上显示的信息仅供参考。

This website uses cookies to ensure you get the best experience. Learn more