Arley Road, Whitecliff, Poole, BH14
Property Details
3
1
Detached
Description
Property Details: • Type: Detached • Tenure: N/A • Floor Area: N/A
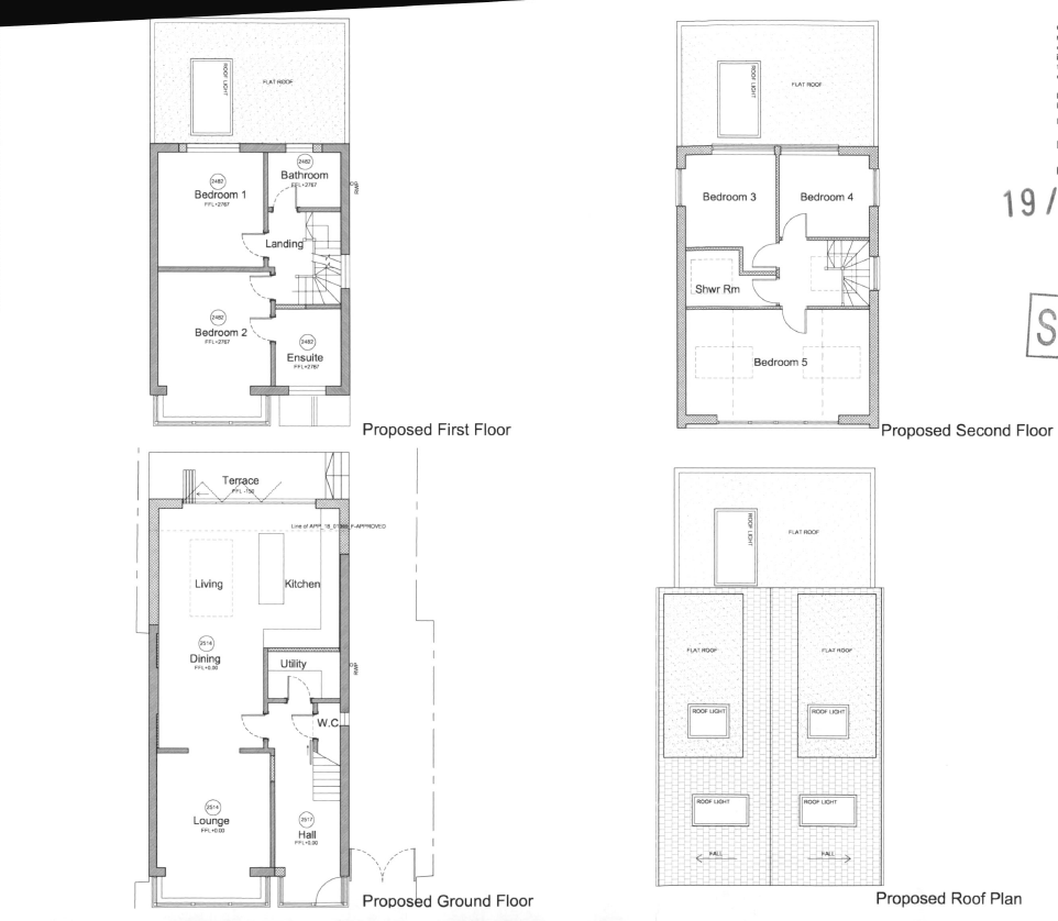
Key Features: • Renovated 3-bedroom house with planning permission for loft conversion • Stylishly open-plan kitchen with Miele appliances, bifold doors, and roof light • Beautiful hardwood herringbone flooring • Dedicated utility / laundry room with WC • Garden office / gym • Off-street parking for two cars, side storage for bikes • All year round green artificial grass • Lilliput, Baden Powell & Poole High School catchments
Location: • Nearest Station: N/A • Distance to Station: N/A
Agent Information: • Address: 3a Springfield Road Parkstone Poole BH14 0LG
Full Description: This fabulously renovated 3-bedroom detached house offers a stunning open-plan kitchen and breakfast room that seamlessly flows into the living room, which features a charming bay window. The modern kitchen boasts stylish shaker units, an integrated Miele dishwasher, and a Neff oven, along with bifold doors leading to the garden and a beautiful roof light flowing in natural light over the family dining area. The ground floor is finished with elegant hardwood herringbone flooring and includes a spacious utility room / WC with space for both a washing machine and tumble dryer. The wide hallway adds to the sense of space and is fiitted with beautifully crafted modern panelling.The principal bedroom is equipped with fitted wardrobes, as is the second bedroom. A contemporary family bathroom serves the household. The property also features a versatile garden office / gym with floor-to-ceiling windows, which can double as an additional bedroom. The kitchen opens onto a raised patio, with steps leading down to a low-maintenance garden with sleeper-bordered synthetic lawn. An additional patio area is located at the rear comfortably nestled under a feature tree. There is also a convenient walk-through storage area to the side of the house, perfect for bikes and water sports equipment. Off-street parking is available for two cars. The property has planning permission for a loft conversion, which will offer views from the top floor over Poole Harbour. The vendor is already suited.Located in a quiet road, just metres from the local shops at Whitecliff. A footpath cuts through to Whitecliff Crescent giving access to the very popular Whitecliff Harbourside Park with its children’s play area, a running and cycle path leading all the way to historic Poole Quay and Parkstone Bay Marina and South Deep Restaurant. In the opposite direction, also walking distance, is fashionable Ashley Cross with bakeries, cafes, restaurants and bars centred around the village green. Parkstone Railway Station offers a direct line into London Waterloo in approximately 2 Hours. The property falls within Lilliput, Baden Powell and Poole High School catchments and the beaches at Sandbanks are only a 10 minute drive or 20 minute cycle away.Council Tax: Band D £2,147.75BrochuresBrochure 1
Location
Address
Arley Road, Whitecliff, Poole, BH14
City
Poole
Features and Finishes
Renovated 3-bedroom house with planning permission for loft conversion, Stylishly open-plan kitchen with Miele appliances, bifold doors, and roof light, Beautiful hardwood herringbone flooring, Dedicated utility / laundry room with WC, Garden office / gym, Off-street parking for two cars, side storage for bikes, All year round green artificial grass, Lilliput, Baden Powell & Poole High School catchments
Legal Notice
Our comprehensive database is populated by our meticulous research and analysis of public data. MirrorRealEstate strives for accuracy and we make every effort to verify the information. However, MirrorRealEstate is not liable for the use or misuse of the site's information. The information displayed on MirrorRealEstate.com is for reference only.