Crabtree Lane, Lancing

GBP 265000 For Sale

Property Details

Bedrooms

4

Bathrooms

1

Property Type

Maisonette

Description

Property Details: • Type: Maisonette • Tenure: N/A • Floor Area: N/A

Key Features:

Location: • Nearest Station: N/A • Distance to Station: N/A

Agent Information: • Address: 143 Ditchling Road, Brighton, East Sussex, BN1 6JA

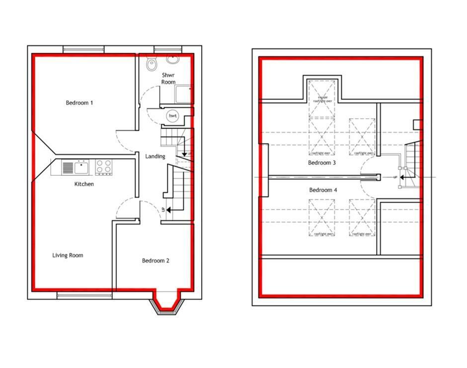
Full Description: WE HAVE KEYS FOR VIEWINGS, CALL TO BOOK AN APPOINTMENT.PRODUCING IMMEDIATE INCOME OF £2,320 PCM.Avards Estate Agents are delighted to offer for sale this 4 bedroom maisonette currently let out as a HMO producing currently £2,320 PCM. This property can be sold with current tenants producing an income immediately or this could also be a home. Situated in the popular Crabtree Lane with a great parade of shops close by and is within easy walking distance to the high street and Lancing train station with its commuter links to Brighton, Gatwick Airport and London. Accommodation comprises of on the first floor, landing, living area/ modern kitchen, 2 bedrooms, modern shower room.. On the second floor are two further bedrooms and landing.First Floor - Landing - Living/Modern Kitchen Area - Bedroom - Bedroom - Second Floor - Bedroom - Bedroom - Disclaimer - Under the terms of the Estate Agency Act 1979 (section 21) please note that the Vendor of this property has an affiliation or connection with Avard Estate Agents.All interested parties must verify accuracy with your solicitor, your solicitor also must verify lease and tenure information, where the property has been extended/converted, planning/building regulations consents and fixtures and fittings. All dimensions are approximate and quoted for guidance only as are floor plans which are not to scale and their accuracy cannot be confirmed. The information provided about this property does not constitute or form part of an offer or contract, nor maybe it be regarded as representations. Reference to appliances and/or services does not imply that they are necessarily in working order or fit for the purpose.THESE PARTICULARS ARE BELIEVED TO BE CORRECT, BUT THEIR ACCURACY IS NOT GUARANTEED. THEY DO NOT FORM PART OF ANY CONTRACT.BrochuresCrabtree Lane, LancingBrochure

Location

Address

Crabtree Lane, Lancing

City

Adur

Legal Notice

Our comprehensive database is populated by our meticulous research and analysis of public data. MirrorRealEstate strives for accuracy and we make every effort to verify the information. However, MirrorRealEstate is not liable for the use or misuse of the site's information. The information displayed on MirrorRealEstate.com is for reference only.

Real Estate Broker
Avard Estate Agents, Brighton
Brokerage
Avard Estate Agents, Brighton
Top Tags
320 PCM Crabtree Lane Lancing
Likes

0

Views

46

This website uses cookies to ensure you get the best experience. Learn more