St Georges House, 2 St Georges Road, Bolton, BL1 2EN

GBP 0 For Sale

Property Details

Property Type

200-2,100 sq ft

Description

*** PRICE ON APPLICATION ***

Property Details: • Type: 200-2,100 sq ft • Tenure: N/A • Floor Area: N/A

Key Features: • Beautiful restored heritage building • Refurbished to a high specification • Great town centre location but minutes away the from motorway network • Excellent transport links • Flexible deals available • Manned reception facilities • Onsite café/bistro

Location: • Nearest Station: Bolton Station • Distance to Station: 0.6 miles

Agent Information: • Address: 20 Halcyon House Chorley New Road Bolton BL1 4AP

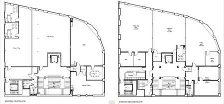
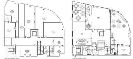
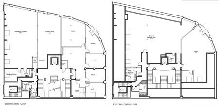
Full Description: The five storey property comprises an attractive and beautifully restored, traditionally constructed period Town Centre office building, with a mixture of cellular and open plan accommodation over all floors.The ground floor has been tastefully and sympathetically refurbished to provide exceptional office accommodation and meeting rooms, in addition to modern ground floor cafe/coffee shop.The building provides spacious office accommodation, with generous facilities, in addition to attractive and imposing common areas, benefitting from the many retained and unearthed traditional features. The offices benefit from full length glazing, gas and electrical central heating systems (with options for air-conditioning) and a passenger lift, accessing all floors.The third floor accommodation provides for a superb dedicated business centre offering fully serviced, exceptional quality office accommodation.There are a number of car parks nearby offering competitive annual contracts.

Location

Address

St Georges House, 2 St Georges Road, Bolton, BL1 2EN

City

Bolton

Features and Finishes

Beautiful restored heritage building, Refurbished to a high specification, Great town centre location but minutes away the from motorway network, Excellent transport links, Flexible deals available, Manned reception facilities, Onsite café/bistro

Legal Notice

Our comprehensive database is populated by our meticulous research and analysis of public data. MirrorRealEstate strives for accuracy and we make every effort to verify the information. However, MirrorRealEstate is not liable for the use or misuse of the site's information. The information displayed on MirrorRealEstate.com is for reference only.

Real Estate Broker
Fletcher CRE LTD, Bolton
Brokerage
Fletcher CRE LTD, Bolton
Top Tags
Likes

0

Views

67

This website uses cookies to ensure you get the best experience. Learn more