West Drive, Birmingham, West Midlands, B5
Property Details
3
1
House
Description
Property Details: • Type: House • Tenure: N/A • Floor Area: N/A
Key Features: • Great Location • Three stories • Garage Plus Small Driveway • Three Bedrooms • Fitted Kitchen With Appliances • Available late November • EPC Rating - D • Council Tax Band - C
Location: • Nearest Station: N/A • Distance to Station: N/A
Agent Information: • Address: 33 Colmore Row, Birmingham, B3 2BS
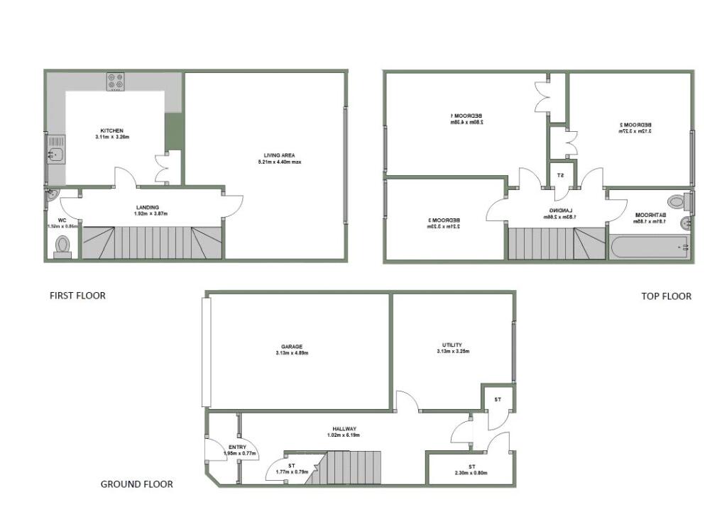
Full Description: John Shepherd are pleased to present this three bedroom townhouse located in convenient location near to Edgbaston Stadium, a short distance from the Queen Elizabeth Hospital. This unfurnished property is located within a gated development, West Drive. The property compromises briefly of a good-sized lounge area with large windows boasting natural daylight throughout and neutral coloured carpet. There is a separate kitchen with appliances including fridge with separate freezer, dishwasher and electric oven with hobThere are three bedrooms situated on the third floor, two of which are good-sized doubles and the third a good sized single. All bedrooms have neutral coloured carpet and large windows. All bedrooms have storage including wardrobes and chest of drawers. The house bathroom is located on the third floor of the property and is partially tiled with shower over bath. There is an additional WC located on the second floor.On the entrance level to the property there is access to a small rear garden and a utility room. The property benefits further from gas central heating and a garage plus small driveway.Available late November
Location
Address
West Drive, Birmingham, West Midlands, B5
City
West Midlands
Features and Finishes
Great Location, Three stories, Garage Plus Small Driveway, Three Bedrooms, Fitted Kitchen With Appliances, Available late November, EPC Rating - D, Council Tax Band - C
Legal Notice
Our comprehensive database is populated by our meticulous research and analysis of public data. MirrorRealEstate strives for accuracy and we make every effort to verify the information. However, MirrorRealEstate is not liable for the use or misuse of the site's information. The information displayed on MirrorRealEstate.com is for reference only.