Winifred Road, Poole, BH15

GBP 425000 For Sale

Property Details

Bedrooms

3

Bathrooms

1

Property Type

Detached Bungalow

Description

Property Details: • Type: Detached Bungalow • Tenure: N/A • Floor Area: N/A

Key Features:

Location: • Nearest Station: N/A • Distance to Station: N/A

Agent Information: • Address: 67 Richmond Road, Parkstone, Poole, BH14 0BU

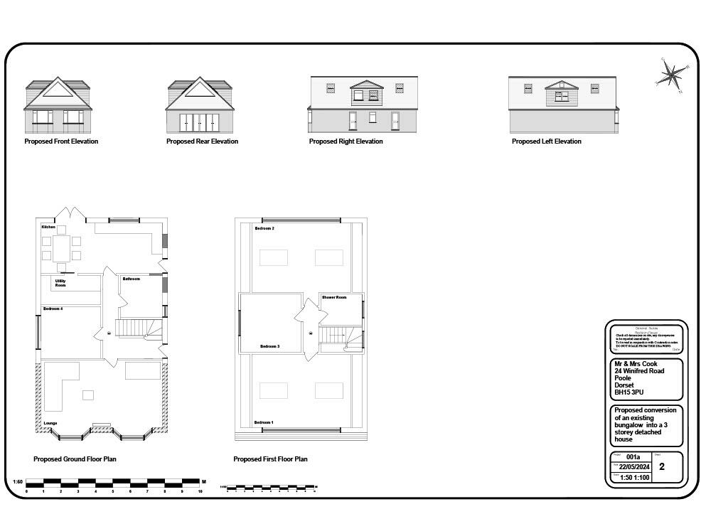
Full Description: ** PLANNING PERMISSION APPROVED ** GREAT OPPORTUNITY TO CREATE A FOREVER FAMILY HOME ** Link Homes Estate Agents are delighted to present for sale this three bedroom detached bungalow positioned in a quiet cul-de-sac with granted planning permission to be converted into either a four bedroom house or a chalet bungalow located in the heart of Oakdale, Poole. The property currently benefits from an array of standout features including three bedrooms, a good-sized living room with direct access onto the Southerly-facing private garden, a separate kitchen with space for appliances, a three-piece family bathroom suite and a a shingle driveway with parking for multiple vehicles. This property is a must view to appreciate the potential being offered!Winifred Road is located in the desirable residential area of Oakdale within walking distance to Tesco Express, doctor’s surgeries, Poole Hospital, local pubs and Oakdale Play Park. Schools close by include Poole High School, Longfleet Primary, Stanley Green Infant Academy, St Mary’s Catholic Primary and Oakdale Junior school. Poole Town Centre is approximately just 1.4 miles away and benefits from the Dolphin Shopping Centre, The Lighthouse theatre, Poole bus station and Poole train station with direct routes to London Waterloo.Entrance HallwaySmooth set ceiling, spotlight, smoke alarm, UPVC double glazed door to the front aspect, UPVC double glazed frosted window to the front aspect, storage cupboard with the consumer unit enclosed, radiator, power points, picture rails, ‘HIVE’ system and laminate flooring.Living RoomSmooth set ceiling, spotlights, UPVC double glazed French doors to the rear aspect, UPVC double glazed single door to the rear aspect, UPVC double glazed window to the rear aspect, radiators, power points, television point and laminate flooring.KitchenSmooth set ceiling, spotlights, UPVC double glazed frosted window to the side aspect, wall and base mounted units, stainless steel sink with drainer, space for a washing machine, space for a dishwasher, space for a free-standing gas hob with oven, fitted overhead stainless steel extractor fan, tiled splash back, power points, space for an American style fridge/freezer and vinyl flooring.Bedroom OneSmooth set ceiling, spotlights, smoke alarm, UPVC double glazed bay window to the front aspect, picture rails, two radiator, power points and carpeted flooring.Bedroom Two Smooth set ceiling, ceiling light, UPVC double glazed window to the side aspect, radiator, power points and carpeted flooring.Bedroom ThreeSmooth set ceiling, ceiling light, smoke alarm, UPVC double glazed window to the front aspect, power points and carpeted flooring.BathroomSmooth set ceiling, ceiling light, UPVC double glazed frosted window to the side aspect, panelled bath with overhead shower, toilet, pedestal sink, wall mounted vanity unit with mirrored front, stainless steel heated towel rail and vinyl flooring.GardenLaid to lawn with patio area, surrounding wooden fences, outside light, outside tap and side gated access.DrivewayShingle driveway with parking for multiple vehicles, outside light, wooden fences, brick wall and side gated access.Useful InformationTenure: FreeholdEPC Rating: DCouncil Tax Band: C - Approximately £1,909.11 per annum. Planning application numbers:Ref. No: APP/24/00589/FRef. No: APP/24/00570/FStamp Duty First Time Buyer: £0Moving Home: £8,750Additional Property: £30,000BrochuresBrochure 1

Location

Address

Winifred Road, Poole, BH15

City

Poole

Legal Notice

Our comprehensive database is populated by our meticulous research and analysis of public data. MirrorRealEstate strives for accuracy and we make every effort to verify the information. However, MirrorRealEstate is not liable for the use or misuse of the site's information. The information displayed on MirrorRealEstate.com is for reference only.

Real Estate Broker
Link Homes Estate Agents, Poole
Brokerage
Link Homes Estate Agents, Poole
Top Tags
Poole doctor’s surgeries Poole Hospital Longfleet Primary
Likes

0

Views

72

This website uses cookies to ensure you get the best experience. Learn more